Appartamento in Vendita a Sant'Olcese, zona Manesseno, 73'407€, 129 m²

Locali: 7
Camere: 3
Piano: 6
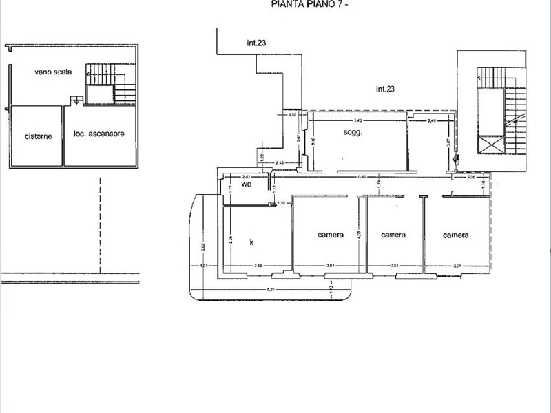
APPARTAMENTO, di vani 6,5 catastali, mq. 129, con annessa porzione di copertura lastrico solare ad uso esclusivo e cantina al piano seminterrato, posto al piano 6° interno 24, del civico 83, di Via G. Poirè in Loc. Manesseno nel Comune di Sant’Olcese; - Il Prezzo visualizzato è la Base d'Asta in quanto l’immobile è oggetto di esecuzione immobiliare venduto tramite Asta Giudiziaria. - L'immobile aggiudicato, viene venduto libero e sgombro da persone cose ed ipoteche nello stato di fatto e di diritto in cui si trova. - Non rappresentiamo il Tribunale, ma lavoriamo nell'esclusivo interesse del potenziale acquirente per garantire un acquisto sicuro. - I consulenti di ASTE ITALIA ti assisteranno in tutte le attività dell'iter giudiziario dalla visita dell'immobile fino alla consegna chiavi. - Contatta il nostro Servizio Clienti , i nostri operatori sono a disposizione per chiarire i molteplici dubbi per partecipare alle ASTE.

Condizioni economiche

Contratto: Vendita
Prezzo: 73'407€
Arredato: No

Informazioni principali

Tipologia: Appartamento
Città: Sant'Olcese
Zona: Manesseno
Superficie: 129 m²
N° locali: 7
N° Camere: 3
Piano: 6
N° balconi: 2
Cucina: Abitabile

Efficenza energetica

Classe energetica: G
Anno di costruzione: 0
Condizioni stabile: Discreto

Caratteristiche

Cantina: Si
Ascensore: Si

Dati inserzione

ID Offrocasa.com: 10886233
Data inserimento: 03/10/2025
Rif. Agenzia: GE598/14L8-1211-25-1600
Rif. Agenzia GE598/14L8-1211-25-1600

Domy Online S.r.l.

Via San Lorenzo 5/41 - Genova
010.8935187
Richiedi Info dal form:
Accetto l'Informativa Privacy


Domy Online S.r.l.

Via San Lorenzo 5/41 - Genova

Appartamento in Vendita a Sant'Olcese, zona Manesseno, 73'407€, 129 m²

Chiama
Contatta