Casa Semi Indipendente in Vendita a Limbiate, 445'000€, 220 m²

Locali: 3
Bagni: 2
Camere: 2
Piano: 1°
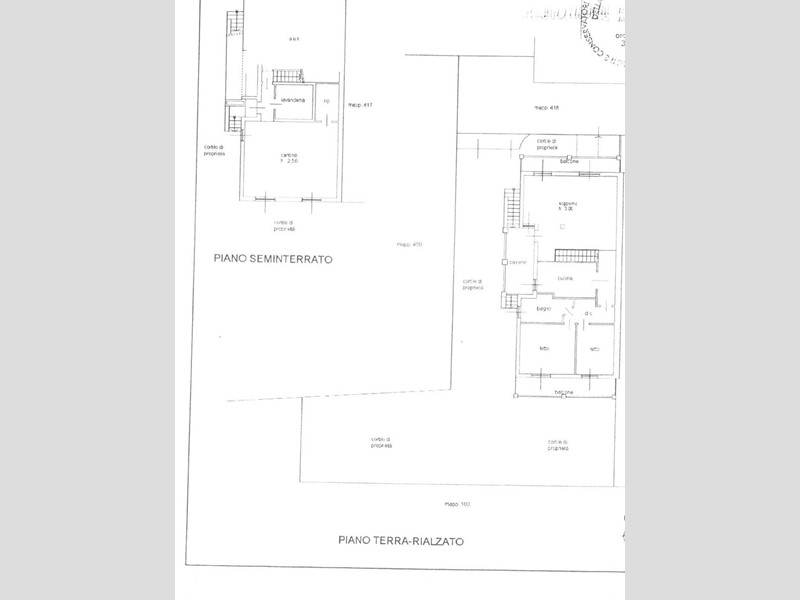
SULIMB: A Limbiate, in zona Ceresolo vicino al parco di villa Mella, in un angolo tranquillo e riservato, proponiamo in vendita questa splendida porzione di bifamiliare che unisce spazi interni eccezionali all'indipendenza e a un generoso spazio esterno. L'immobile si estende su ben 220 mq interni ed è in ottimo stato di manutenzione, frutto di una ristrutturazione curata nel 2014 con ottime finiture interne. L'esterno è caratterizzato dall'elegante facciata in mattoni faccia vista, che conferisce un aspetto signorile e duraturo. Al piano rialzato troviamo il soggiorno doppio e luminoso, il cuore della casa ideale per accogliere famiglia e amici con il massimo comfort con un ampio terrazzo, perfetto prolungamento della zona giorno, ideale per colazioni all'aperto o momenti di relax, due camere da letto e servizio. Piano Seminterrato Spaziosa Taverna Open Space, perfetta come locale hobby o zona conviviale, completata di cucina in murature e bagno. La proprietà è circondata da un'area esterna di 300 mq totali, con una parte dedicata a giardino e una parte piastrellata. Box Auto Doppio in larghezza. Nessuna Spesa Condominiale, massima autonomia gestionale garantita dall'ingresso indipendente. Questa soluzione è l'ideale per chi cerca una casa di rappresentanza, con spazi interni ed esterni di alto livello, in una posizione serena a Limbiate.

Condizioni economiche

Contratto: Vendita
Prezzo: 445'000€
Libero: Si

Informazioni principali

Tipologia: Casa Semi Indipendente
Città: Limbiate
Superficie: 220 m²
N° locali: 3
N° bagni: 2
N° Camere: 2
Piano:
Box: Doppio
Cucina: Abitabile
Giardino: Privato

Efficenza energetica

Classe energetica:
Climatizzatore: Si
Anno di costruzione: 1985
Riscaldamento: autonomo a radiatori

Dati inserzione

ID Offrocasa.com: 10885997
Data inserimento: 03/10/2025
Rif. Agenzia: SULIMB
Rif. Agenzia SULIMB

Yucca snc CERCOCASA

Piazza del Tricolore 8 - Senago (Milano)
0299057862
Richiedi Info dal form:
Accetto l'Informativa Privacy


Yucca snc CERCOCASA

Piazza del Tricolore 8 - Senago (Milano)

Casa Semi Indipendente in Vendita a Limbiate, 445'000€, 220 m²

Chiama
Contatta