Trilocale in Vendita a Origgio, 299'000€, 88 m²

Locali: 3
Bagni: 2
Camere: 2
Piano: Piano Terra
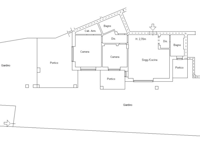
L'abitazione è posta in una signorile palazzina, dalla finiture ricercate e ricca di verde, ubicata in una bellissima zona residenziale di ultima realizzazione, tranquilla e comoda per l'ingresso autostradale o gli spostamenti con i paesi limitrofi, potendo sfruttare le vicine vie principali di collegamento! All'appartamento si accede a piedi percorrendo un gradevole vialetto condominiale, oppure direttamente dal piano garage, utilizzando il vano scala / ascensore se si parcheggia nell'autorimessa di proprietà. La casa è suddivisa in ingresso su zona living soggiorno con cucina, disimpegno con ripostiglio, doppi servizi, camera singola e camera matrimoniale con cabina armadio. L'area esterna di proprietà la fa da padrona con il giardino di ben 215 mq, dotato di ingresso di servizio indipendente da strada e porticati di ulteriori 40 mq, il tutto circonda l'appartamento che può quindi godere di ampi spazi dove potersi rilassare oppure trascorrere momenti di convivialità nella bella stagione. L'abitazione è dotata di riscaldamento a pavimento, ventilazione meccanica controllata, impianto di irrigazione, smart domotica per gestione luci e tapparelle, zanzariere, impianto di climatizzazione con pompa di calore posto nella zona living e nella camera matrimoniale (quella singola è comunque accessoriata di predisposizione), predisposizione impianto di allarme, oltre impianto fotovoltaico condominiale. Presente box singolo di generosa metratura, posto auto di proprietà e cantina. - Maggiori Dettagli: Climatizzato, Porta blindata

Condizioni economiche

Contratto: Vendita
Prezzo: 299'000€

Informazioni principali

Tipologia: Trilocale
Città: Origgio
Superficie: 88 m²
N° locali: 3
N° bagni: 2
N° Camere: 2
Piano: Piano Terra
Box: Singolo
Posto auto: Assegnato
Cucina: Angolo cottura
Giardino: Privato

Efficenza energetica

Classe energetica: A
Climatizzatore: Automo
Anno di costruzione: 2016
Condizioni stabile: buono
Ristrutturato: Ottime Condizioni
Riscaldamento: Centralizzato

Caratteristiche

Cantina: Presente
Ascensore: Si
Videocitofono: Si

Dati inserzione

ID Offrocasa.com: 10885423
Data inserimento: 03/10/2025
Rif. Agenzia: OR-301
Rif. Agenzia OR-301

Royal Immobiliare

Piazza della Vittoria, 16 - Parabiago (Milano)
3458817794
Richiedi Info dal form:
Accetto l'Informativa Privacy


Condividi

Royal Immobiliare

Piazza della Vittoria, 16 - Parabiago (Milano)

Trilocale in Vendita a Origgio, 299'000€, 88 m²

Chiama
Contatta