Bilocale in Vendita a Napoli, 140'000€, 61 m²
        
    
        
    
        
    
    
        Bilocale con soppalco in Corso Arnaldo Lucci
In posizione centrale, a pochi passi dalla Stazione Centrale, dalla metropolitana e dalla Circumvesuviana, proponiamo in vendita un appartamento con soppalco che rappresenta una soluzione interessante sia abitativa che reddituale.
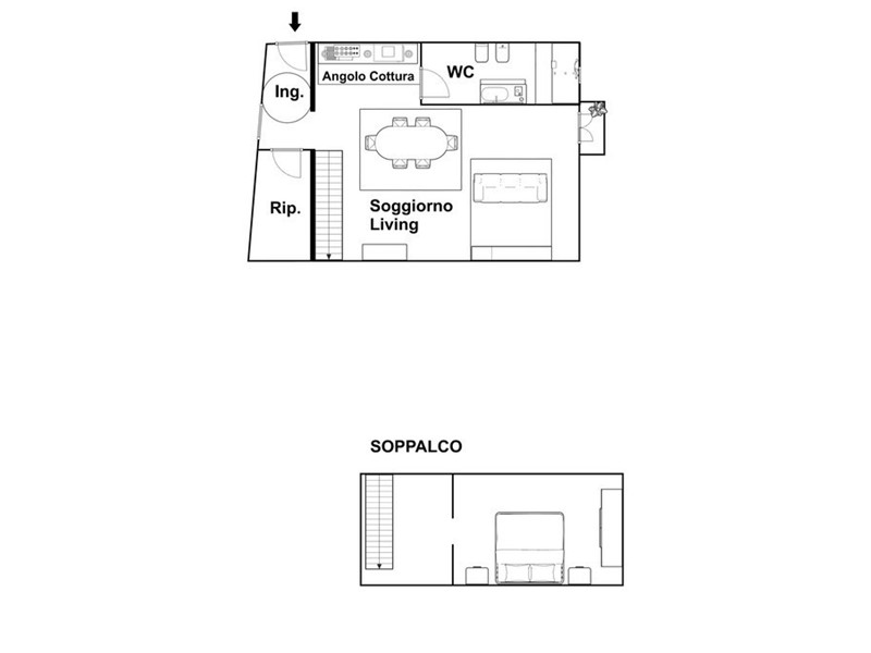
L'immobile, posto al secondo piano senza ascensore, misura 61 mq commerciali (50 mq interni e 23 mq di soppalco) distribuiti su due livelli.
Al piano principale l'ingresso conduce a un soggiorno con cucina, oltre a un ripostiglio e a un bagno ben organizzato.
Sul soppalco si trova la zona notte, pratica e accogliente.
La posizione è tra le più strategiche di Napoli: nel cuore della città, con tutti i servizi a portata di mano e collegamenti che consentono di raggiungere facilmente ogni quartiere e l'hinterland.
Con spese condominiali contenute (circa 18 ? mensili), l'appartamento si presenta come ottimo investimento ad alta redditività, grazie alla vicinanza con i principali snodi di trasporto.
Allo stesso tempo, è una valida scelta come prima casa, ideale per chi desidera vivere in una zona centrale e ben servita.
Contattaci per maggiori informazioni o per fissare una visita.
	
    
    
    
        
        
            Condizioni economiche
            
                Contratto: Vendita
            
            
                Prezzo: 140'000€
            
            
                
                    Arredato: No
                
            
                
                    Spese condominiali: 18€
                
            
                
                    Libero: Si
                
            
         
        
            Informazioni principali
            
                Tipologia: Bilocale
            
            
                Città: Napoli
            
            
                
                    Superficie: 61 m²
                
            
                
                    N° locali: 2
                
            
                
                    N° bagni: 1
                
            
                
                    N° Camere: 1
                
            
                
                    Piano: 2°
                
            
                
                    Cucina: Angolo Cottura
                
            
         
        
            Efficenza energetica
            
                Classe energetica: 2015-G
            
            
                
                    Ipe: 176.00 kwm2
                
            
                
                    Anno di costruzione: 1960
                
            
		 
        
            
                Dati inserzione
                
                    ID Offrocasa.com: 10884995
                
                
                
                    Data inserimento: 02/10/2025
                
                
                    
                        Rif. Agenzia: Cod. rif 3263832VRG
                    
                
             
        
	 
    
    
        
Bilocale in Vendita a Napoli, 140'000€, 61 m²