Villetta a schiera in Vendita a Conegliano, 690'000€, 315 m²

Locali: 10+
Bagni: 4
Camere: 3
Piano: Su più livelli
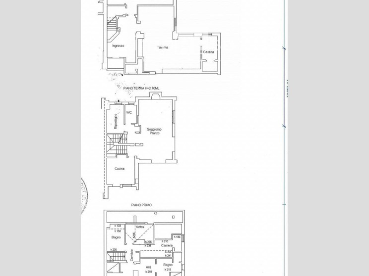
Bifamiliare in Vendita a Conegliano Scoprite l'eleganza senza tempo di questa straordinaria villetta a schiera , una gemma incastonata nel cuore del prestigioso Parco Rocca, a Conegliano. Questa proprietà immobiliare di 315 metri quadri è perfetta per le famiglie alla ricerca di uno spazio raffinato e sofisticato dove vivere. Situata in una posizione centralissima e avvolta dal verde, la villetta si distingue per le sue magnifiche dotazioni. Al piano seminterrato, sarete accolti da un maestoso ingresso in marmo che conduce a una meravigliosa taverna con caminetto, una cucina completamente attrezzata, una cantina, una lavanderia, un bagno e una stireria, perfettamente funzionali e di grande comfort. Al piano terra, un luminoso open space vi avvolgerà con il suo soggiorno impreziosito da un caminetto. La cucina separata, con dettagli eleganti in legno, offre tramite le porte finestre, luminosità e accesso a un generoso pergolato esterno, dotato di un terzo caminetto. La zona notte, situata al primo piano, comprende una suite padronale con vista mozzafiato sul castello, dotata di bagno privato. Vi sono inoltre un'altra camera matrimoniale, una cameretta e un bagno completo, garantendo spazio e comfort a tutta la famiglia. Completano questa prestigiosa proprietà un garage di 40 mq e un rigoglioso giardino di 350 mq circa ideali per trascorrere piacevoli momenti di relax con famiglia e ospiti. La posizione centrale permette di raggiungere facilmente tutti i servizi. Per avere maggiori informazioni su questa bifamiliare in vendita in centro a Conegliano potete contattarci presso l'agenzia immobiliare impREsa di Conegliano in Via Colombo 51 telefonando al n. 043823921, citando il Rif. I/NG087D oppure visitate il nostro sito www.impresaimmobiliare.com

Condizioni economiche

Contratto: Vendita
Prezzo: 690'000€
Arredato: Parzialmente arredato
Libero: Si

Informazioni principali

Tipologia: Villetta a schiera
Città: Conegliano
Superficie: 315 m²
N° locali: 10+
N° bagni: 4
N° Camere: 3
Piano: Su più livelli
Box: Doppio
Cucina: Si
Giardino: Privato
Esposizione: Sud-Ovest

Efficenza energetica

Classe energetica: C
Ipe: 107,00 kwh_m2
Anno di costruzione: 1990
Condizioni stabile: Molto buono
Riscaldamento: Autonomo

Dati inserzione

ID Offrocasa.com: 10884848
Data inserimento: 02/10/2025
Rif. Agenzia: I/NG087D
Rif. Agenzia I/NG087D

ImpREsa Conegliano

Via Cesare Battisti, 5/C - Conegliano (Treviso)
043823921
Richiedi Info dal form:
Accetto l'Informativa Privacy


ImpREsa Conegliano

Via Cesare Battisti, 5/C - Conegliano (Treviso)

Villetta a schiera in Vendita a Conegliano, 690'000€, 315 m²

Chiama
Contatta