Casa Indipendente in Vendita a Diano Castello, 212'537€, 322 m²

Locali: 10+
Camere: 3
Piano: s
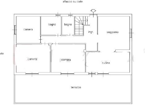
A) Villa singola della superficie commerciale di 322,48 mq. Il fabbricato si compone di una piano interrato e un sottotetto abitabile. Il piano terra è composto da tre camere, sala, cucina e due bagni. Il piano sottotetto è abitabile ma ancora in costruzione, privo di rifiniture ed è provvisto di un terrazzo. B) Terreno agricolo, uliveto. - Il Prezzo visualizzato è la Base d'Asta in quanto l’immobile è oggetto di esecuzione immobiliare venduto tramite Asta Giudiziaria. - L'immobile aggiudicato, viene venduto libero e sgombro da persone cose ed ipoteche nello stato di fatto e di diritto in cui si trova. - Non rappresentiamo il Tribunale, ma lavoriamo nell'esclusivo interesse del potenziale acquirente per garantire un acquisto sicuro. - I consulenti di ASTE ITALIA ti assisteranno in tutte le attività dell'iter giudiziario dalla visita dell'immobile fino alla consegna chiavi. - Contatta il nostro Servizio Clienti , i nostri operatori sono a disposizione per chiarire i molteplici dubbi per partecipare alle ASTE.

Condizioni economiche

Contratto: Vendita
Prezzo: 212'537€
Arredato: No

Informazioni principali

Tipologia: Casa Indipendente
Città: Diano Castello
Superficie: 322 m²
N° locali: 10+
N° Camere: 3
Piano: s
Cucina: Abitabile

Efficenza energetica

Classe energetica: G
Anno di costruzione: 0
Condizioni stabile: Discreto
Riscaldamento: Autonomo

Caratteristiche

Cantina: Si

Dati inserzione

ID Offrocasa.com: 10884170
Data inserimento: 01/10/2025
Rif. Agenzia: IM93/21LU-1601-26-1600
Rif. Agenzia IM93/21LU-1601-26-1600

ASTE ITALIA

Via Serra 6 Int 7 - Genova (GE)
010.8935240
Richiedi Info dal form:
Accetto l'Informativa Privacy


ASTE ITALIA

Via Serra 6 Int 7 - Genova (GE)

Casa Indipendente in Vendita a Diano Castello, 212'537€, 322 m²

Chiama
Contatta