Villa bifamiliare in Vendita a Genazzano, 180'000€, 70 m²

Locali: 3
Bagni: 2
Piano: Su più livelli
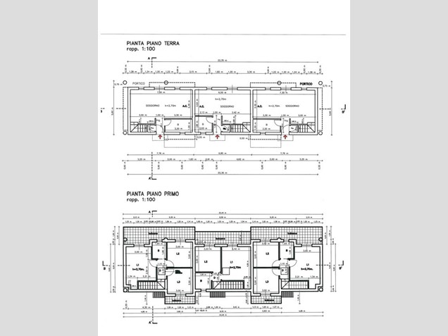
SPECIALE CANTIERE, in zona Genazzano, una caratteristica cittadina che sorge a 374 mt di altezza a pochi km da Roma, ben collegata con i mezzi pubblici e 17 Km dal casello autostradale Valmontone/San Cesario, iniziamo vendita/prenotazione di n° 3 villini indipendenti in trifamigliare disposti su 2 livelli residenziali fuori terra, ognuno con giardino di diverso taglio e 2 posti macchina interni scoperti. Le ville si dispongono come segue: "A" 2 porzioni angolari di mq 85 ognuna composta da ingresso, soggiorno con angolo cottura con accesso su portico e giardino di mq 110 su 3 lati, ripostiglio e bagno al piano terra e disimpegno, 3 camere, bagno, terrazzo e balcone al piano primo. "B" porzione centrale di mq 70 composta da soggiorno con angolo cottura con accesso su portico e giardino di mq 50 diviso tra avanti e dietro, ripostiglio e bagno al piano terra e disimpegno, 2 camere, bagno e balcone al piano primo. Le ville saranno realizzate con le più avanzate tecniche edilizie e nel rispetto dell'ambiente, dotate di cappotto termico esterno, riscaldamento autonomo con caldaia a condensazione, pannelli fotovoltaici da 1 kl, infissi in PVC con doppio vetro a camera, portone blindato, videocitofono, predisposizione per pannelli solari e impianto di condizionamento. Possibilità di personalizzazione degli interni e della scelta dei materiali. Prezzi a partire da ? 180.000,00

Condizioni economiche

Contratto: Vendita
Prezzo: 180'000€

Informazioni principali

Tipologia: Villa bifamiliare
Città: Genazzano
Superficie: 70 m²
N° locali: 3
N° bagni: 2
Piano: Su più livelli

Efficenza energetica

Classe energetica: A
Ipe: 80.00 kwm2
Anno di costruzione: 0

Dati inserzione

ID Offrocasa.com: 10882586
Data inserimento: 30/09/2025
Rif. Agenzia: GNZ123VRG
Rif. Agenzia GNZ123VRG

Grimaldi Immobiliare

via roma 10 - Grottaferrata (Roma)
069497757
Richiedi Info dal form:
Accetto l'Informativa Privacy


Grimaldi Immobiliare

via roma 10 - Grottaferrata (Roma)

Villa bifamiliare in Vendita a Genazzano, 180'000€, 70 m²

Chiama
Contatta