Quadrilocale in Vendita a Piossasco, 155'000€, 115 m²
        
    
        
    
        
    
    
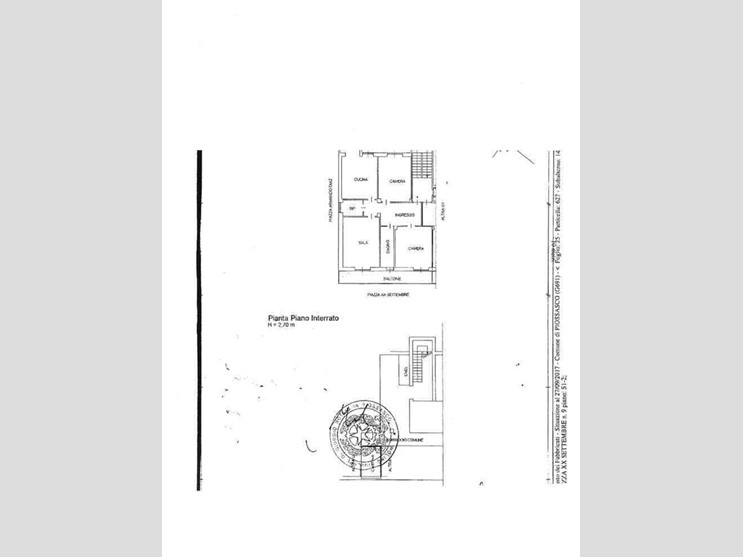
        Piazza XX Settembre, Gabetti Bruino propone in esclusiva ampio quadrilocale di c.a 115 mq sito al secondo piano con ascensore di una graziosa e ricercata palazzina composto da ingresso, salone, ampia cucina abitabile, due camere matrimoniali, servizio, lavanderia/ripostiglio e due ampi balconi panoramici. 
Al piano interrato un locale ad uso cantina. 
L'immobile si presenta totalmente ristrutturato nel 2014 oltre che LIBERO SUBITO ed è dotato di tende estive e antifurto. 
Ideale per chi è alla ricerca della comodità a tutti i principali servizi del paese. 
DA VEDERE!
	
    
    
    
        
        
            Condizioni economiche
            
                Contratto: Vendita
            
            
                Prezzo: 155'000€
            
            
                
                    Arredato: No
                
            
                
                    Spese condominiali: 100€
                
            
                
                    Libero: Si
                
            
         
        
            Informazioni principali
            
                Tipologia: Quadrilocale
            
            
                Città: Piossasco
            
            
                
                    Superficie: 115 m²
                
            
                
                    N° locali: 4
                
            
                
                    N° bagni: 1
                
            
                
                    N° Camere: 2
                
            
                
                    Piano: 2°
                
            
                
                    Cucina: Abitabile
                
            
         
        
            Efficenza energetica
            
                Classe energetica: 2015-E
            
            
                
                    Ipe: 234.60 kwm2
                
            
                
                    Anno di costruzione: 1967
                
            
                
                    Riscaldamento: centralizzato 
                
            
		 
        
                
                    Caratteristiche
                    
                        
                            Cantina: Si
                        
                    
                        
                            Ascensore: Si
                        
                    
                 
            
            
                Dati inserzione
                
                    ID Offrocasa.com: 10882547
                
                
                
                    Data inserimento: 30/09/2025
                
                
                    
                        Rif. Agenzia: Cod. rif 3263383VRG
                    
                
             
        
	 
    
    
        
Quadrilocale in Vendita a Piossasco, 155'000€, 115 m²