Quadrilocale in Vendita a Arzano, 145'000€, 129 m²

Locali: 4
Bagni: 3
Camere: 3
Piano: 1°
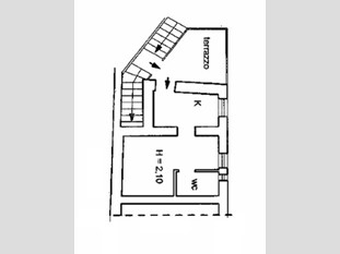
Porzione di piccolo fabbricato ad uso abitativo situato nel comune di Arzano (NA) e ubicato in zona centrale ma al contempo tranquilla. Questa proposta di vendita, con una superficie totale di 129 mq catastali, è costituita da due abitazioni oltre ad un vano terraneo. Gli immobili sono così composti e distribuiti: 1) trilocale al primo piano con interessante doppio ingresso contrapposto che rende potenzialmemte e facilmente frazionabile la proprietà in due unità abitative; attualmente è suddiviso in angolo cottura con soggiorno living, corridoio, due camere da letto, due bagni, ripostiglio ed ampia balconata accessibile direttamente da tutti gli ambienti. 2) monolocale con cucina, camera, bagno, terrazzino a livello e ulteriore piccolo vano sottoposto al piano terra. Le condizioni interne sono buone e caratterizzate da pavimenti in ceramica, serramenti in pvc, napoletane in ferro e impianto d'allarme; gli ambienti risultano confortevoli grazie alla loro esposizione a sud e al riscaldamento autonomo presente in tutte le stanze. La posizione centrale degli immobili e la possibilità di posto auto in area condominiale, li rende comodi e vicino a tutti i servizi essenziali, come bar, ristoranti, scuole, farmacie, ufficio postale e servizi pubblici in genere. Con la sua disposizione flessibile di un trilocale frazionabile più un monolocale, entrambi disponibili da subito, questa offerta ha molteplici possibilità di utilizzo. Contattaci oggi stesso per organizzare una visita e scoprire tutte le potenzialità di questa affascinante proprietà. CODICE 3258830 Contatti WhatsApp 3898207289

Condizioni economiche

Contratto: Vendita
Prezzo: 145'000€
Arredato: No
Libero: Si

Informazioni principali

Tipologia: Quadrilocale
Città: Arzano
Superficie: 129 m²
N° locali: 4
N° bagni: 3
N° Camere: 3
Piano:
Posto auto: Si
Cucina: Angolo Cottura

Efficenza energetica

Classe energetica: 2015-G
Ipe: 177.00 kwm2
Anno di costruzione: 1939
Riscaldamento: autonomo

Caratteristiche

Cantina: Si

Dati inserzione

ID Offrocasa.com: 10881940
Data inserimento: 29/09/2025
Rif. Agenzia: Cod. rif 3258830VRG
Rif. Agenzia Cod. rif 3258830VRG

Gabetti

Via Napoli 70 - Arzano (Napoli)
0817318456
Richiedi Info dal form:
Accetto l'Informativa Privacy


Condividi

Gabetti

Via Napoli 70 - Arzano (Napoli)

Quadrilocale in Vendita a Arzano, 145'000€, 129 m²

Chiama
Contatta