Casa Indipendente in Vendita a Rovigo, 69'000€, 140 m²

Locali: 4
Bagni: 2
Camere: 2
Piano: Terra
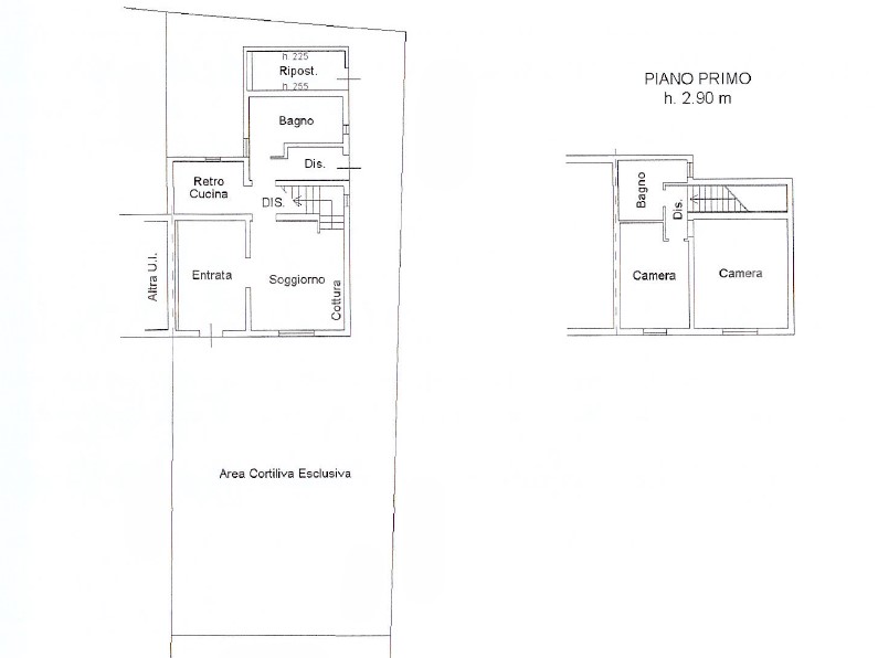
RO2936. SANT'APOLLINARE. In frazione, nella campagna rodigina, a pochi minuti dal centro città, proponiamo IN VENDITA ESCLUSIVA, casa accostata ad un lato con giardino. L'immobile di recente ristrutturazione, vanta una superficie di circa 140 mq ed è disposto su due livelli, offre ampi spazi, tranquillità e comfort di una casa indipendente. Al piano terra troviamo un ampio ingresso, un soggiorno luminoso con stufa, cucina abitabile, bagno finestrato con doccia e ripostiglio; al piano primo invece, una camera matrimoniale, una spaziosa camera singola e un altro bagno. Grazie al giardino di circa 516mq potrai vivere momenti di tranquillità, svago all'aria aperta con amici e parenti. La casa gode inoltre, di una posizione particolarmente comoda, a pochi passi dai mezzi pubblici che collegano rapidamente le principali zone della città. Cogli subito questa occasione, chiamaci al 0425 090894 per fissare una visita e scoprire di persona tutto ciò che questa proprietà può offrirti.

Condizioni economiche

Contratto: Vendita
Prezzo: 69'000€
Arredato: No
Libero: Si

Informazioni principali

Tipologia: Casa Indipendente
Città: Rovigo
Superficie: 140 m²
N° locali: 4
N° bagni: 2
N° Camere: 2
Piano: Terra
Box: Doppio
Cucina: Abitabile
Giardino: Privato

Efficenza energetica

Classe energetica: 2015-G
Ipe: 308.59 kwm2
Climatizzatore: Si
Anno di costruzione: 1950
Riscaldamento: autonomo

Caratteristiche

Cantina: Si

Dati inserzione

ID Offrocasa.com: 10881070
Data inserimento: 27/09/2025
Rif. Agenzia: RO2936VRG
Rif. Agenzia RO2936VRG

Gabetti

via Umberto I, 27/c - Rovigo
0425/090894
Richiedi Info dal form:
Accetto l'Informativa Privacy


Gabetti

via Umberto I, 27/c - Rovigo

Casa Indipendente in Vendita a Rovigo, 69'000€, 140 m²

Chiama
Contatta