Immobile commerciale in Vendita a Serra Riccò, 108'974€, 202 m²

Locali: 3
Piano: t
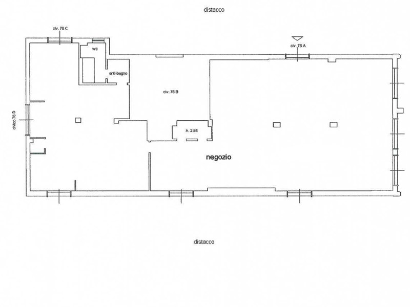
PIENA PROPRIETA' DI LOCALE AD USO NEGOZIO A SERRA RICCO' (GE) IN VIA FRATELLI CANEPA 76A-76C-76D AL PIANO TERRA CON ANNESSO SERVIZIO IGIENICO. SUPERFICIE CATASTALE 202 MQ. CLASSE ENERGETICA F. - Il Prezzo visualizzato è la Base d'Asta in quanto l’immobile è oggetto di esecuzione immobiliare venduto tramite Asta Giudiziaria. - L'immobile aggiudicato, viene venduto libero e sgombro da persone cose ed ipoteche nello stato di fatto e di diritto in cui si trova. - Non rappresentiamo il Tribunale, ma lavoriamo nell'esclusivo interesse del potenziale acquirente per garantire un acquisto sicuro. - I consulenti di ASTE ITALIA ti assisteranno in tutte le attività dell'iter giudiziario dalla visita dell'immobile fino alla consegna chiavi. - Contatta il nostro Servizio Clienti , i nostri operatori sono a disposizione per chiarire i molteplici dubbi per partecipare alle ASTE.

Condizioni economiche

Contratto: Vendita
Prezzo: 108'974€
Arredato: No

Informazioni principali

Tipologia: Immobile commerciale
Città: Serra Riccò
Superficie: 202 m²
N° locali: 3
Piano: t

Efficenza energetica

Classe energetica: F
Anno di costruzione: 0
Condizioni stabile: Discreto

Dati inserzione

ID Offrocasa.com: 10878376
Data inserimento: 24/09/2025
Rif. Agenzia: GE520/24L17-1012-25-1200
Rif. Agenzia GE520/24L17-1012-25-1200

ASTE ITALIA

Via Serra 6 Int 7 - Genova (GE)
010.8935240
Richiedi Info dal form:
Accetto l'Informativa Privacy


ASTE ITALIA

Via Serra 6 Int 7 - Genova (GE)

Immobile commerciale in Vendita a Serra Riccò, 108'974€, 202 m²

Chiama
Contatta