Appartamento in Vendita a Givoletto, 295'000€, 140 m²
        
    
        
    
        
    
    
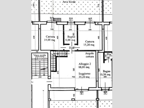
        Givoletto in piccola palazzina esternamente rifinita con facciata in intonaco e paramano, composta da sole quattro unità abitative con bassissime spese condominiali, proponiamo appartamento con giardino. L'alloggio situato al piano terra di circa 90 mq è composto da ingresso living su ampia zona giorno con angolo cottura e zona salotto, con affaccio diretto sul terrazzo e sul giardino pianeggiante e soleggiato, disimpegno, due grandi camere da letto e bagno. Collegato da comoda scala in muratura, il piano interrato di circa 50 mq offre un locale di sgombero sfruttabile come tavernetta, una lavanderia e un box auto. La richiesta è di ? 295.000 . No iva . Grazie all'ampia metratura, al giardino e agli spazi accessori, l'immobile si presenta come una soluzione ideale per famiglie che necessitano di grandi spazi.
Gli immobili saranno costruiti rispettando tutte le normative energetiche, saranno dotati di riscaldamento a pavimento, pannelli solari, impianti fotovoltaici e pompe di calore.  Ottimi i materiali delle rifiniture interne, pavimenti e rivestimenti dall'elegante capitolato. La fine del cantiere è prevista per novembre/dicembre 2025. Classe energetica A4.
? 295.000 No Iva
	
    
    
    
        
        
            Condizioni economiche
            
                Contratto: Vendita
            
            
                Prezzo: 295'000€
            
            
         
        
            Informazioni principali
            
                Tipologia: Appartamento
            
            
                Città: Givoletto
            
            
                
                    Superficie: 140 m²
                
            
                
                    N° locali: 5
                
            
                
                    N° bagni: 2
                
            
         
        
            Efficenza energetica
            
                Classe energetica: 2015-A4
            
            
                
                    Ipe: 20.00 kwm2
                
            
                
                    Anno di costruzione: 0
                
            
		 
        
            
                Dati inserzione
                
                    ID Offrocasa.com: 10878306
                
                
                
                    Data inserimento: 24/09/2025
                
                
                    
                        Rif. Agenzia: Cod. rif 2082VRG
                    
                
             
        
	 
    
    
        
Appartamento in Vendita a Givoletto, 295'000€, 140 m²