Appartamento in Vendita a Campobasso, 185 m²

Locali: 5
Bagni: 2
Camere: 3
Piano: 1
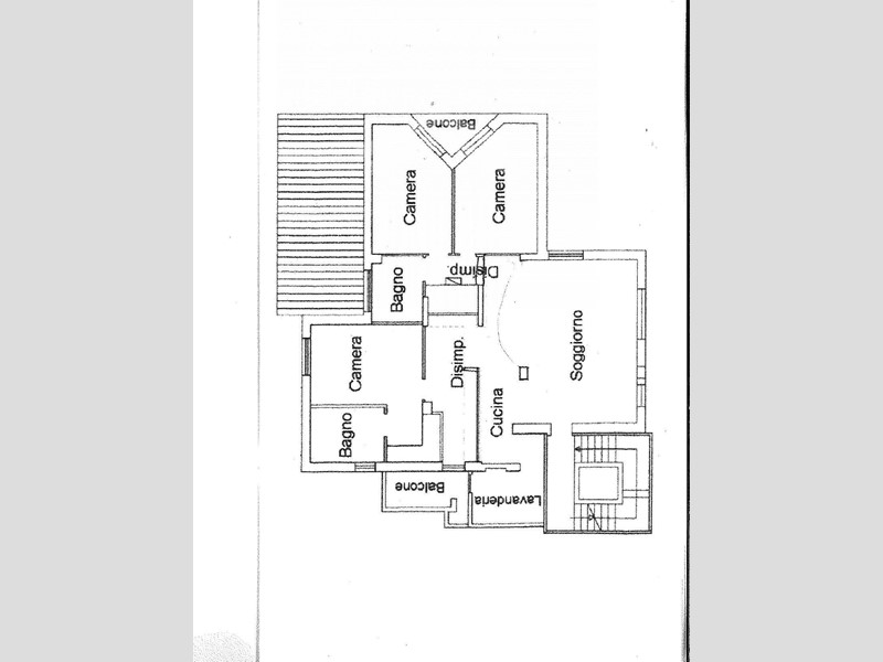
In un meraviglioso contesto indipendente, ad un passo dal centro della città, disponiamo la vendita di un bellissimo ed ampio appartamento ubicato al primo piano di una villa singola, completamente recintata, circondata da corte esterna con giardino e terreno pianeggiante, ai piedi del castello Monforte. L'immobile è così composto: signorile zona giorno open space illuminata da grandi finestre, cucina a vista, angolo relax con libreria, elegante camera padronale con bagno en suite dotato di vasca idromassaggio, due soleggiate camere da letto, bagno e lavanderia con affaccio sul terrazzino. All'esterno l'ampio spazio antistante permette di parcheggiare le proprie auto con estrema comodità. L'appartamento è rifinito interamente con materiali di pregio e la posizione nonché la generosa metratura, fanno di questo immobile un gioiello. TRATTATIVA RISERVATA. Ape: in fase di istruttoria Rif. P434

Condizioni economiche

Contratto: Vendita
Prezzo: Prezzo su richiesta
Libero: Si

Informazioni principali

Tipologia: Appartamento
Città: Campobasso
Superficie: 185 m²
N° locali: 5
N° bagni: 2
N° Camere: 3
Piano: 1
Giardino: Privato

Efficenza energetica

Classe energetica:
Anno di costruzione: 1995
Condizioni stabile: Molto buono
Riscaldamento: Autonomo

Dati inserzione

ID Offrocasa.com: 10877069
Data inserimento: 23/09/2025
Rif. Agenzia: P434
Rif. Agenzia P434

Centro Affari

via Principe di Piemonte n. 33 - Campobasso
0874.414101
Richiedi Info dal form:
Accetto l'Informativa Privacy


Condividi

Centro Affari

via Principe di Piemonte n. 33 - Campobasso

Appartamento in Vendita a Campobasso, 185 m²

Chiama
Contatta