Quadrilocale in Vendita a Torino, 195'000€, 103 m²

Locali: 4
Bagni: 1
Camere: 2
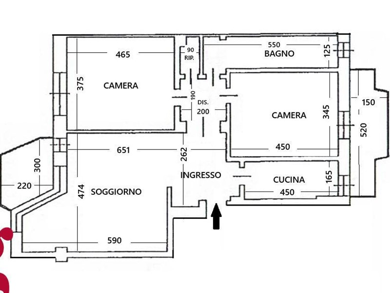
L'agenzia immobiliare Gabetti di CORSO MONTE CUCCO propone in vendita in VIA MONGINEVRO, quartiere POZZO STRADA, pressi CORSO TRAPANI, 4 locali di 103 mq. situato al PRIMO PIANO in uno stabile medio signorile edificato alla fine degli anni '60 con ascensore. COMPOSIZIONE INTERNA: ingresso living su ampio zona salotto con soggiorno molto luminosa con ampia finestra angolare, cucina, due camere matrimoniali, ripostiglio, un bagno e due terrazzini. Completa la proprietà una cantina. CONDIZIONI INTERNE: RISTRUTTURATO PERCHE' SCEGLIERLO? ? Stabile in ottime condizioni di mantenimento. ? Appartamento taglio classico. Il bagno e la cucina sono stati ristrutturati rispettivamente nel 2010 e nel 2015, gli infissi, in alluminio con doppio vetro, sono stati sostituiti nel 2015, mentre nel 2020 sono state aggiunte le tende da sole. Dotato di impianto antifurto e climatizzatore. ? Buona posizione, comodo a tutti i servizi pubblici, locali commerciali e negozi, situato a 500 m dal parco Ruffini e dalle strutture sportive. SPESE DI RISCALDAMENTO: ? 506,35 (quota fissa) + consumo SPESE DI CONDOMINIO ? 826,49 + ? 181,40 acqua a persona Classe Energetica C Visita il nostro sito internet: www.gabettisantaritapozzostrada.it Ti è piaciuto il nostro annuncio? Se vuoi vendere il tuo immobile possiamo sfruttarne al massimo le potenzialità! Contattaci al numero 011.33.58.703 e riceverai la valutazione di un PROFESSIONISTA GABETTI le nostre sedi in Torino, Pozzo Strada Viberti, Santa Rita, Mirafiori e Lingotto-Traiano: Corso Monte Cucco n. 57/B Corso Sebastopoli n. 243/C (fronte Piscina Sebastopoli) Corso Agnelli n. 66 (fronte Sporting)

Condizioni economiche

Contratto: Vendita
Prezzo: 195'000€
Arredato: No
Spese condominiali: 69€

Informazioni principali

Tipologia: Quadrilocale
Città: Torino
Superficie: 103 m²
N° locali: 4
N° bagni: 1
N° Camere: 2
Cucina: Abitabile

Efficenza energetica

Classe energetica: C
Ipe: 0.00 kwm2
Climatizzatore: Si
Anno di costruzione: 1967
Riscaldamento: centralizzato

Caratteristiche

Cantina: Si
Ascensore: Si

Dati inserzione

ID Offrocasa.com: 10876478
Data inserimento: 21/09/2025
Rif. Agenzia: MONGINEVRO 126VRG
Rif. Agenzia MONGINEVRO 126VRG

Gabetti

Corso Agnelli 66 - Torino
011/359393
Richiedi Info dal form:
Accetto l'Informativa Privacy


Gabetti

Corso Agnelli 66 - Torino

Quadrilocale in Vendita a Torino, 195'000€, 103 m²

Chiama
Contatta