Ufficio in Vendita a Busto Arsizio, 210'000€, 338 m²

Locali: 5
Bagni: 2
Piano: Terra
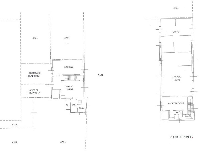
Busto Arsizio, in posizione comoda per raggiungere rapidamente sia la Stazione FNM che il centro cittadino, proponiamo in vendita magazzino/deposito con area esterna di proprietà. L'immobile fa parte di un ottimo contesto edilizio completamente ristrutturato nel 2001, è sito all'interno di un'area recintata, con accesso da Via Sirmione tramite cancello carraio automatizzato e cancello pedonale con citofono, completa la proprietà un'area cortilizia pertinenziale prospicente l'immobile, mentre il resto del cortile è comune alle altre unità immobiliari. Al piano terra si trovano un locale d'ingresso con scala di accesso al primo piano, un ufficio di circa 30mq, un disimpegno, bagno e locale caldaia, per una metratura totale di circa 80mq. La pavimentazione è in ceramica, i serramenti in alluminio con doppio vetro, l'altezza è di 4m. Il primo piano, di circa 250mq, ospita un locale disimpegno, ulteriori servizi e 6 uffici di diverse metrature, l'ampia superficie consente di adattare gli spazi alle diverse necessità. Il bagno è piastrellato e rivestito con piastrelle di ceramica, mentre il resto della superficie ha pavimento galleggiante. Gli uffici sono controsoffittati con quadrotti in cartongesso e illuminazione incassata a soffitto. L'impianto di riscaldamento dei bagni e l'acqua calda sono prodotti dalla caldaia murale posta al piano terra, mentre gli uffici sono riscaldati/raffreddati da ventilconvettori a pavimento. L'altezza del piano è 2,93m. L'immobile è in buono stato di conservazione. Possibilità di acquisto anche del laboratorio/magazzino a piano terra di ulteriori 138mq a 95.000?

Condizioni economiche

Contratto: Vendita
Prezzo: 210'000€
Arredato: No

Informazioni principali

Tipologia: Ufficio
Città: Busto Arsizio
Superficie: 338 m²
N° locali: 5
N° bagni: 2
Piano: Terra
Posto auto: Si

Efficenza energetica

Classe energetica: 2015-D
Ipe: 100.50 kwm2
Anno di costruzione: 1950

Dati inserzione

ID Offrocasa.com: 10874909
Data inserimento: 19/09/2025
Rif. Agenzia: pw21VCU
Rif. Agenzia pw21VCU

Gabetti

Via XXII Marzo 2 - Busto Arsizio (Varese)
0331.67.04.26
Richiedi Info dal form:
Accetto l'Informativa Privacy


Gabetti

Via XXII Marzo 2 - Busto Arsizio (Varese)

Ufficio in Vendita a Busto Arsizio, 210'000€, 338 m²

Chiama
Contatta