Capannone in Vendita a Carrara, zona Avenza, 110'000€, 350 m²

Locali: 7
Piano: t
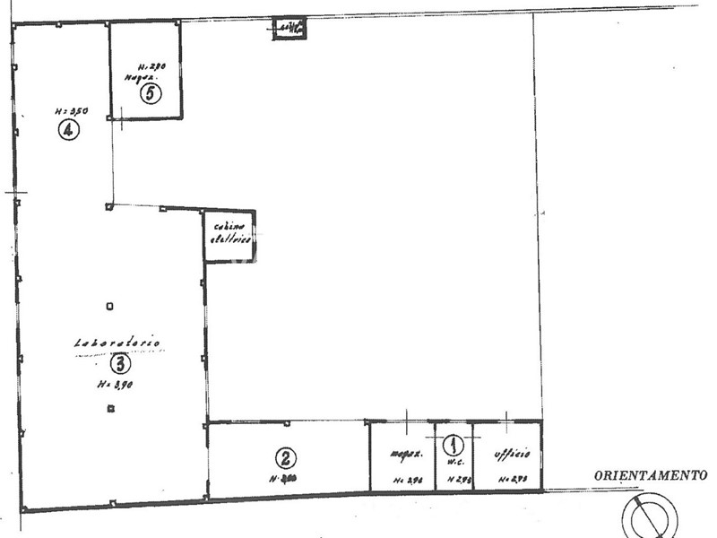
In vendita a Carrara località Avenza - Viale XX Settembre in posizione strategica Lotto di circa 800 mq con ingresso carrabile direttamente dal Viale costituito da un'area coperta di circa 350 mq e di un'area scoperta di circa 460 mq, in particolare è presente un laboratorio di circa 180 mq con altezza massima 3,9 mt e adiacente tettoia con altezza 3,5 mt di circa 55 mq oltre a 3 magazzini e 1 uffic di altezza 2,9 per un totale di altri 100 mq. Tutti gl iimmobili sono da considerarsi completamente da ristrutturare.

Condizioni economiche

Contratto: Vendita
Prezzo: 110'000€
Arredato: No

Informazioni principali

Tipologia: Capannone
Città: Carrara
Zona: Avenza
Vicinanze: Centrale
Superficie: 350 m²
N° locali: 7
Piano: t

Efficenza energetica

Classe energetica: NA
Anno di costruzione: 0
Condizioni stabile: Da ristrutturare

Dati inserzione

ID Offrocasa.com: 10874130
Data inserimento: 18/09/2025
Rif. Agenzia: 2973
Rif. Agenzia 2973

Valore Casa Immobiliare Snc di Casarini & Cencetti

Via Giovan Pietro, 18/a - Carrara (MS)
0585.857536
Richiedi Info dal form:
Accetto l'Informativa Privacy


Valore Casa Immobiliare Snc di Casarini & Cencetti

Via Giovan Pietro, 18/a - Carrara (MS)

Capannone in Vendita a Carrara, zona Avenza, 110'000€, 350 m²

Chiama
Contatta