Trilocale in Vendita a Piacenza, 285'000€, 85 m²

Locali: 3
Bagni: 1
Camere: 2
Piano: Terra
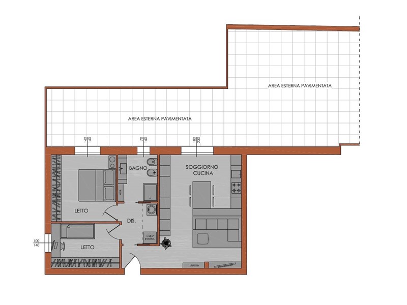
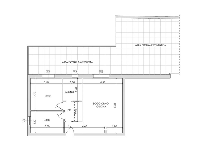
In Signorile stabile di nuova generazione e tecnologicamente all'avanguardia SENZA UTILIZZO DI GAS, appartamento PIANO TERRA di 85 mq composto da ingresso in ampio soggiorno con angolo cottura che affaccia su un'ampia TERRAZZA, disimpegno, 2 camere da letto, bagno finestrato, cantina e GARAGE COMPRESO. Consegna FINE 2025. Possibilità di scelta delle finiture. Disponibile appartamento di pari metratura anche al piano primo ad Euro 297.000,00, e al piano secondo ad Euro 314.000,00. *INFORMATIVA PRIVACY* Per tutelare la privacy dei nostri clienti, vi informiamo che, in alcuni casi, L'INDIRIZZO INDICATO DELL'IMMOBILE E' SOLITAMENTE APPROSSIMATIVO. Maggiori dettagli verranno SEMPRE forniti SOLO dopo contatto telefonico. Si riceve SEMPRE SOLO ESCLUSIVAMENTE con appuntamento da contatto telefonico o mail. dal Lunedì al Venerdì dalle 9.00 alle 12.30 e dalle 14.00 alle 18.00 Sabato mattina SOLO PER APPUNTAMENTI - Domenica CHIUSO TEL. 0523.49.08.18 MAIL: info@soluzionecasapc.it; MAIL: affitti@soluzionecasapc.it; SOLUZIONECASA Piacenza - Via Monte Penice 18 - 29121 Piacenza

Condizioni economiche

Contratto: Vendita
Prezzo: 285'000€
Arredato: Non arredato

Informazioni principali

Tipologia: Trilocale
Città: Piacenza
Superficie: 85 m²
N° locali: 3
N° bagni: 1
N° Camere: 2
Piano: Terra
Box: Singolo
Cucina: Si

Efficenza energetica

Classe energetica: A4
Anno di costruzione: 2025
Condizioni stabile: Molto buono
Riscaldamento: Autonomo

Caratteristiche

Ascensore: Si

Dati inserzione

ID Offrocasa.com: 10872792
Data inserimento: 17/09/2025
Rif. Agenzia: GC14325_1
Rif. Agenzia GC14325_1

SOLUZIONE CASA

Via Monte Penice 18 - Piacenza
0523.490818
Richiedi Info dal form:
Accetto l'Informativa Privacy


Condividi

SOLUZIONE CASA

Via Monte Penice 18 - Piacenza

Trilocale in Vendita a Piacenza, 285'000€, 85 m²

Chiama
Contatta