Casa Indipendente in Vendita a Quargnento, 78'975€, 329 m², con Box

Locali: 10+
Camere: 3
Piano: s
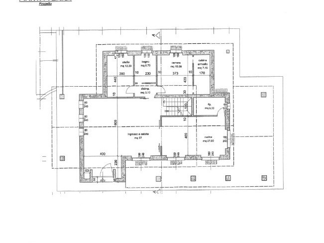
Fabbricato in fase di costruzione con area di pertinenza esclusiva a due piani fuori terra e un piano interrato. Al piano terra sono presenti: un portico, un ingresso/soggiorno, una cucina abitabile, un ripostiglio, uno studio, un bagno, un disimpegno, una camera con cabina armadi. Al piano primo sono presenti: due camere, due bagni, un corridoio ed un terrazzo. Al piano interrato sono presenti un locale autorimessa, un locale caldaia, una cantina, un bagno e un ampio locale di sgombero. - Il Prezzo visualizzato è la Base d'Asta in quanto l’immobile è oggetto di esecuzione immobiliare venduto tramite Asta Giudiziaria. - L'immobile aggiudicato, viene venduto libero e sgombro da persone cose ed ipoteche nello stato di fatto e di diritto in cui si trova. - Non rappresentiamo il Tribunale, ma lavoriamo nell'esclusivo interesse del potenziale acquirente per garantire un acquisto sicuro. - I consulenti di ASTE ITALIA ti assisteranno in tutte le attività dell'iter giudiziario dalla visita dell'immobile fino alla consegna chiavi. - Contatta il nostro Servizio Clienti , i nostri operatori sono a disposizione per chiarire i molteplici dubbi per partecipare alle ASTE.

Condizioni economiche

Contratto: Vendita
Prezzo: 78'975€
Arredato: No

Informazioni principali

Tipologia: Casa Indipendente
Città: Quargnento
Superficie: 329 m²
N° locali: 10+
N° Camere: 3
Piano: s
Box: Si
Cucina: Abitabile
Giardino: Si

Efficenza energetica

Classe energetica: G
Anno di costruzione: 0
Condizioni stabile: In costruzione
Riscaldamento: Autonomo

Caratteristiche

Cantina: Si

Dati inserzione

ID Offrocasa.com: 10871967
Data inserimento: 16/09/2025
Rif. Agenzia: AL312/23LU-1712-25-1600
Rif. Agenzia AL312/23LU-1712-25-1600

ASTE ITALIA

Via Serra 6 Int 7 - Genova (GE)
010.8935240
Richiedi Info dal form:
Accetto l'Informativa Privacy


ASTE ITALIA

Via Serra 6 Int 7 - Genova (GE)

Casa Indipendente in Vendita a Quargnento, 78'975€, 329 m², con Box

Chiama
Contatta