Appartamento in Vendita a Torino, 47'400€, 87 m²

Locali: 5
Camere: 2
Piano: 3
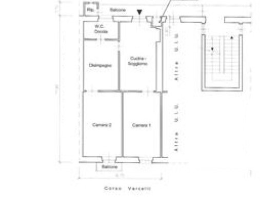
Al piano terzo, quarto fuori terra, con accesso da ballatoio, ALLOGGIO composto di soggiorno-cucina, due camere, disimpegno, servizio igienico, ripostiglio esterno e due balconi.Al piano interrato DUE locali ad uso CANTINA. - Il Prezzo visualizzato è la Base d'Asta in quanto l’immobile è oggetto di esecuzione immobiliare venduto tramite Asta Giudiziaria. - L'immobile aggiudicato, viene venduto libero e sgombro da persone cose ed ipoteche nello stato di fatto e di diritto in cui si trova. - Non rappresentiamo il Tribunale, ma lavoriamo nell'esclusivo interesse del potenziale acquirente per garantire un acquisto sicuro. - I consulenti di ASTE ITALIA ti assisteranno in tutte le attività dell'iter giudiziario dalla visita dell'immobile fino alla consegna chiavi. - Contatta il nostro Servizio Clienti , i nostri operatori sono a disposizione per chiarire i molteplici dubbi per partecipare alle ASTE.

Condizioni economiche

Contratto: Vendita
Prezzo: 47'400€
Arredato: No

Informazioni principali

Tipologia: Appartamento
Città: Torino
Superficie: 87 m²
N° locali: 5
N° Camere: 2
Piano: 3
N° balconi: 2
Cucina: Angolo cottura

Efficenza energetica

Classe energetica: F
Anno di costruzione: 0
Condizioni stabile: Discreto
Riscaldamento: Autonomo

Caratteristiche

Cantina: Si

Dati inserzione

ID Offrocasa.com: 10866974
Data inserimento: 10/09/2025
Rif. Agenzia: TO249/24LU-0212-25-1500
Rif. Agenzia TO249/24LU-0212-25-1500

ASTE ITALIA

Via Serra 6 Int 7 - Genova (GE)
010.8935240
Richiedi Info dal form:
Accetto l'Informativa Privacy


ASTE ITALIA

Via Serra 6 Int 7 - Genova (GE)

Appartamento in Vendita a Torino, 47'400€, 87 m²

Chiama
Contatta