Quadrilocale in Vendita a Acerra, 129'000€, 150 m²

Locali: 4
Bagni: 2
Camere: 3
Piano: 1°
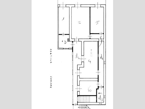
Ampio Appartamento in Vendita - Corso Vittorio Emanuele, Acerra Nel cuore di Acerra, a ridosso di uno dei corsi principali della città, Corso Vittorio Emanuele, proponiamo in vendita un ampio appartamento di circa 150 mq, situato al primo piano di un tranquillo contesto di corte. L'immobile è composto da: ? Ingresso ? Ampio salone ? Cucina abitabile ? Tre camere da letto ? Bagno ? Doppia esposizione con affaccio sia su strada che all'interno della corte L'appartamento è da ristrutturare, ma la generosa metratura offre ottime possibilità di personalizzazione e valorizzazione degli spazi, ideale per chi cerca una soluzione comoda e funzionale nel centro cittadino. ? Posto auto interno alla corte ???? Possibilità di acquistare box auto di 70 mq al prezzo di ? 20.000,00

Condizioni economiche

Contratto: Vendita
Prezzo: 129'000€

Informazioni principali

Tipologia: Quadrilocale
Città: Acerra
Superficie: 150 m²
N° locali: 4
N° bagni: 2
N° Camere: 3
Piano:
Cucina: Abitabile

Efficenza energetica

Classe energetica: 2015-F
Ipe: 175.00 kwm2
Anno di costruzione: 0

Dati inserzione

ID Offrocasa.com: 10866951
Data inserimento: 10/09/2025
Rif. Agenzia: Cod. rif 3257221VRG
Rif. Agenzia Cod. rif 3257221VRG

Grimaldi Franchising

Prossima Apertura - - Acerra (Napoli)
3338173139
Richiedi Info dal form:
Accetto l'Informativa Privacy


Condividi

Grimaldi Franchising

Prossima Apertura - - Acerra (Napoli)

Quadrilocale in Vendita a Acerra, 129'000€, 150 m²

Chiama
Contatta