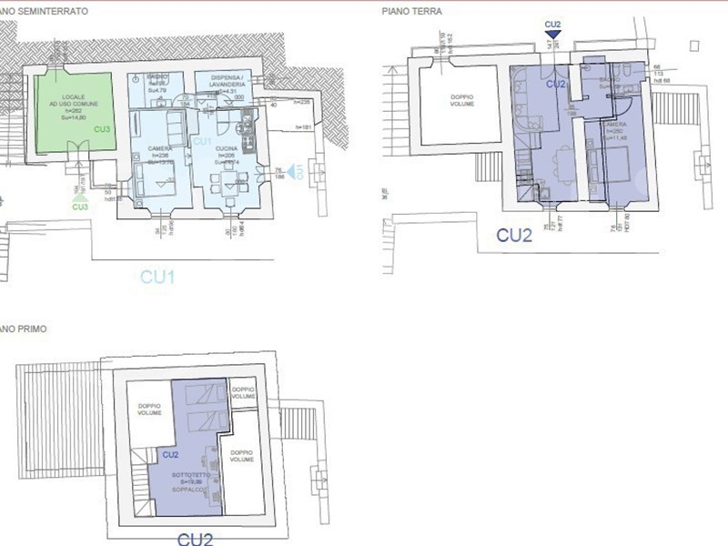
Casa Indipendente in Vendita a Castiglione dei Pepoli, 155'000€, 100 m²

Locali: 4
Bagni: 2
Nel cuore di Castiglione dei Pepoli, proponiamo in vendita appartamenti e villette di nuova costruzione frutto di un importante recupero edilizio. Gli appartamenti variano dal trilocale con giardino fino ad arrivare alla soluzione indipendente. Le unità possono essere completamente personalizzate. Possibilità di detrazioni fiscali per la ristrutturazione Consegna primavera 2027. Classe energetica elevata. Per info e Prenotazioni 3293618584

Condizioni economiche

Contratto: Vendita
Prezzo: 155'000€
Arredato: No

Informazioni principali

Tipologia: Casa Indipendente
Città: Castiglione dei Pepoli
Superficie: 100 m²
N° locali: 4
N° bagni: 2

Efficenza energetica

Classe energetica: A
Ipe: 0.00 kwm2
Anno di costruzione: 0

Dati inserzione

ID Offrocasa.com: 10866808
Data inserimento: 10/09/2025
Rif. Agenzia: Cod. rif 3256979VRG
Rif. Agenzia Cod. rif 3256979VRG

Gabetti

via Porrettana 373 - Sasso Marconi (Bologna)
051/846050
Richiedi Info dal form:
Accetto l'Informativa Privacy


Gabetti

via Porrettana 373 - Sasso Marconi (Bologna)

Casa Indipendente in Vendita a Castiglione dei Pepoli, 155'000€, 100 m²

Chiama
Contatta