Bilocale in Affitto a Milano, 1'900€, 90 m², arredato

Locali: 2
Bagni: 2
Camere: 1
Piano: 4°
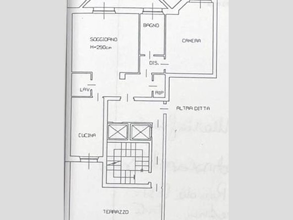
Splendido bilocale luminoso ed elegante di 90 mq con terrazzo di 20 mq situato al quarto piano di un edificio signorile con doppio ascensore e portineria tutto il giorno. L' appartamento è stato completamente ristrutturato ed é in ottime condizioni. L'ingresso condominiale accoglie gli ospiti in un ambiente curato e ben tenuto, mentre l'interno dell' appartamento si distingue per la sua luminosità e l'ampia metratura. La zona giorno è composta da un soggiorno doppio, ideale per momenti di relax e convivialità. Cucina abitabile moderna con grande angolo pranzo e accesso diretto al terrazzo. Spaziosa camera da letto fornita di armadi capienti. Il bagno, moderno e funzionale, è dotato di tutti i comfort necessari. Grazie all'impianto di climatizzazione autonomo, è possibile regolare la temperatura interna in base alle proprie esigenze, garantendo sempre il massimo comfort abitativo. La doppia esposizione dell'appartamento assicura una buona luminosità in ogni momento della giornata. Possibilità box all' interno del condominio. La posizione centrale dell'immobile offre la comodità di avere a portata di mano numerosi servizi e attività commerciali, tra cui tram, bus, bar, caffè, fast food, pub, ristoranti, farmacie, cinema e ufficio postale. L'appartamento è disponibile da subito e si presenta come la soluzione ideale per chi desidera vivere in un ambiente confortevole e ben curato, in una delle zone più ambite di Milano. Non lasciarti sfuggire questa opportunità unica e contattaci per organizzare una visita.

Condizioni economiche

Contratto: Affitto
Prezzo: 1'900€
Arredato: Si
Spese condominiali: 400€
Libero: Si

Informazioni principali

Tipologia: Bilocale
Città: Milano
Superficie: 90 m²
N° locali: 2
N° bagni: 2
N° Camere: 1
Piano:
Cucina: Abitabile

Efficenza energetica

Classe energetica: E
Ipe: 197.16 kwm2
Climatizzatore: Si
Anno di costruzione: 1960
Riscaldamento: centralizzato

Caratteristiche

Ascensore: Si

Dati inserzione

ID Offrocasa.com: 10865372
Data inserimento: 08/09/2025
Rif. Agenzia: 97/25ARG
Rif. Agenzia 97/25ARG

Grimaldi Immobiliare

Via Meda 11/A - Milano
02/8394905
Richiedi Info dal form:
Accetto l'Informativa Privacy


Grimaldi Immobiliare

Via Meda 11/A - Milano

Bilocale in Affitto a Milano, 1'900€, 90 m², arredato

Chiama
Contatta