Quadrilocale in Vendita a Milano, 815'000€, 140 m², arredato

Locali: 4
Bagni: 2
Camere: 3
Piano: 1°
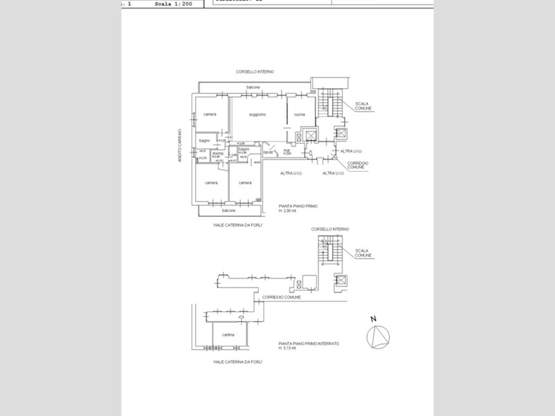
Adiacenze Piazzale Tripoli- Viale Caterina da forlì, in stabile signorile proponiamo spazioso quadrilocale ristrutturato di 140 mq posto al primo piano. Composto da: ingresso, doppio soggiorno, cucina abitabile, tre camere da letto, due bagni, ripostiglio e cantina. Tripla esposizione. Gabetti Milano Pagano Via Piero Capponi, 2 20145 MILANO Tel. +39 02.466.404 Mail: mipagano@gabetti.it Web: gabetti.it/agenzia/milano-pagano

Condizioni economiche

Contratto: Vendita
Prezzo: 815'000€
Arredato: Si
Spese condominiali: 400€

Informazioni principali

Tipologia: Quadrilocale
Città: Milano
Superficie: 140 m²
N° locali: 4
N° bagni: 2
N° Camere: 3
Piano:
Cucina: Abitabile

Efficenza energetica

Classe energetica: 2015-E
Ipe: 189.89 kwm2
Climatizzatore: Si
Anno di costruzione: 1970
Riscaldamento: centralizzato

Caratteristiche

Cantina: Si
Ascensore: Si
Videocitofono: Si

Dati inserzione

ID Offrocasa.com: 10860651
Data inserimento: 02/09/2025
Rif. Agenzia: Cod. rif 3238065VRG
Rif. Agenzia Cod. rif 3238065VRG

Gabetti

Via Piero Capponi 2 - Milano
02/466404
Richiedi Info dal form:
Accetto l'Informativa Privacy


Gabetti

Via Piero Capponi 2 - Milano

Quadrilocale in Vendita a Milano, 815'000€, 140 m², arredato

Chiama
Contatta