Ufficio in Affitto a Milano, 7'700€, 316 m²

Locali: 10+
Bagni: 2
Piano: Su due livelli
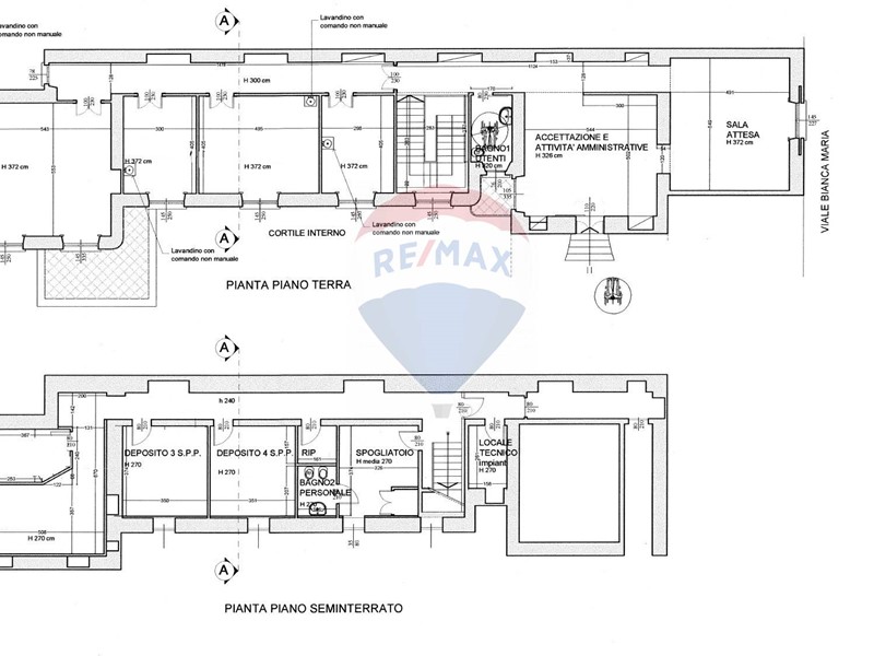
UFFICIO DI RAPPRESENTANZA CON POSTO AUTO-PRONTO ALL'USO In Viale Bianca Maria, appena fuori dall’Area C, proponiamo in locazione ufficio di rappresentanza di 316 mq, situato in un elegante palazzo dei primi del Novecento dotato di portineria e POSTO AUTO interno. L’immobile, pronto all’uso, dispone di ingresso autonomo e si sviluppa su due livelli: piano rialzato e piano seminterrato. Il piano rialzato (236 mq) accoglie un ampio ingresso, cinque stanze tutte finestrate, un terrazzo e un bagno per persone con disabilità, in conformità alle normative vigenti. Ogni ambiente è già dotato di aria condizionata canalizzata con controllo indipendente e cablaggio dati. Il piano seminterrato (160 mq), rifinito come il livello superiore, comprende tre stanze, uno spogliatoio e un locale tecnico. Anche qui è presente l’impianto di climatizzazione canalizzata con air control dedicato e sistema di ricircolo dell’aria. Le caratteristiche tecniche di questo piano, unitamente alle autorizzazioni già ottenute dalla precedente attività presso ATS, consentono la parziale permanenza di persone, in funzione della tipologia di attività esercitata e della nuova richiesta da effettuare a carico dell'inquilino. Termina l'offerta un'ampia cantina utilizzabile come archivio. Il canone mensile è di € 7.700, a cui si aggiungono € 500 di spese condominiali comprensive di riscaldamento centralizzato. Richiesta massima solvibilità. Non esitare a contattarci per avere maggiori informazioni su questo o su altri immobili gestiti dal Gruppo RE/MAX! Devi affittare un immobile? Contattaci! Facciamo parte del Network Immobiliare n.1 al Mondo e con le nostre agenzie e i nostri Consulenti affiliati saremo in grado di valorizzare al massimo il tuo immobile, seguendoti con professionalità ed impegno fino alla locazione alle migliori condizioni, con le migliori garanzie e le tempistiche più adatte alle tue esigenze. Ci trovi anche su Facebook e su Instagram, cerca le nostre pagine e seguici! Informazioni, immagini e video contenute in questo annuncio hanno scopo prettamente informativo e non costituiscono, in alcun caso, elemento contrattuale.

Condizioni economiche

Contratto: Affitto
Prezzo: 7'700€
Arredato: Non arredato
Spese condominiali: 500€
Libero: Si

Informazioni principali

Tipologia: Ufficio
Città: Milano
Superficie: 316 m²
N° locali: 10+
N° bagni: 2
Piano: Su due livelli
Cucina: Si

Efficenza energetica

Classe energetica: D
Condizioni stabile: Molto buono
Riscaldamento: Centralizzato

Dati inserzione

ID Offrocasa.com: 10859095
Data inserimento: 30/08/2025
Rif. Agenzia: 33491011-213
Rif. Agenzia 33491011-213

RE/MAX Valori

Via Benvenuto Garofalo, 31 - Milano
0240702273
Richiedi Info dal form:
Accetto l'Informativa Privacy


RE/MAX Valori

Via Benvenuto Garofalo, 31 - Milano

Ufficio in Affitto a Milano, 7'700€, 316 m²

Chiama
Contatta