Villa in Vendita a Massa, zona Poveromo, 3'500'000€, 757 m², arredato, con Box

Locali: 10+
Bagni: 5
Camere: 5
Piano: piano terra
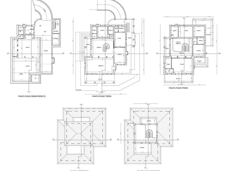
Nel cuore del litorale di Ronchi-Poveromo, a meno di un chilometro dalle spiagge , si trova Villa Roby. Una dimora senza tempo che unisce un’architettura raffinata alla quiete della natura. Questa lussuosa villa si erge armoniosamente su circa 5000 mq di verde privato e rigoglioso. Un rifugio di pace, a pochi passi da caffè, panetterie, mercati, servizi essenziali e dagli iconici stabilimenti balneari della costa toscana. Una Dimora di Prestigio e di Luce Costruita negli anni ’90 e con una superficie di circa 757 mq Villa Roby trasmette fascino duraturo e sofisticatezza architettonica. Eleganti lavorazioni in pietra e maioliche artigianali che rivestono la facciata e le terrazze esaltano lo stile classico, integrandosi perfettamente con l’ambiente circostante. Dal momento in cui si varcano i cancelli, la villa accoglie con un’atmosfera di pacata grandezza e lusso discreto. Piano Terra: Spazi Maestosi e Comfort Quotidiano Gli interni, inondati di luce naturale, vantano pavimenti in marmo di Carrara nella maggior parte delle zone living principali, una firma dell’artigianato italiano più pregiato. Ampio ingresso, dominato da una scenografica scala, dà subito il tono: elegante e accogliente. Soggiorno open space, con camino, doppie porte-finestre e numerose vetrate, è perfetto per momenti conviviali. Sala da pranzo formale, anch’essa con camino e porte-finestre affacciate sul giardino, invita a lunghe cene con amici e familiari. Bagno per gli ospiti Guardaroba La prima delle cinque camere da letto con bagno privato, ideale per ospiti o per soluzioni abitative multigenerazionali Ampia cucina attrezzata con dispensa, bagno di servizio e ingresso separato, perfetta per ricevimenti o per il personale di servizio Tre grandi terrazze a livello collegano in modo fluido gli interni al rigoglioso giardino, offrendo zone soleggiate e ombreggiate per pranzi all’aperto, colazioni o momenti di relax serali, in ogni stagione. Primo Piano: Suite Private e Vedute Panoramiche Suite padronale, un rifugio esclusivo con bagno privato, cabina armadio doppia, zona vanity e doppie porte-finestre che si aprono su una terrazza esposta a ovest, con vista sull’intera proprietà. Altra suite composta da due camere da letto condivide un bagno privato; entrambe le stanze dispongono di porte-finestre che si affacciano su terrazze indipendenti, perfette per momenti di quiete all’aria aperta. Quinta camera, con splendida vista sulle montagne, dispone di un ampio bagno privato ed è abbastanza spaziosa da poter essere utilizzata come studio o palestra. Secondo Piano: Il Gioiello della Villa All’ultimo piano si trova un ambiente versatile e luminoso, il vero gioiello della proprietà. Questo spazio offre viste a 360° sul parco, sulla brezza marina e sulle montagne lontane. Due terrazze private e finiture architettoniche in continuità con l’esterno lo rendono perfetto come studio artistico, ufficio, salotto di lettura o sala yoga. Piano Seminterrato: Funzionalità e Comfort Completa la proprietà un ampio piano interrato con pavimento in marmo, ideale come cantina vini, area fitness o sala intrattenimento. Un garage adiacente garantisce parcheggio sicuro per più veicoli, offrendo comodità e tranquillità. Giardino e Spazi Esterni: Un Rifugio Privato in Toscana Gli spazi esterni sono curati con la stessa attenzione degli interni. L’equilibrio tra prati assolati e zone ombreggiate crea un’oasi di pace, ideale per il relax o per ricevimenti eleganti. Il parco include: Pini marittimi e querce secolari Ampio prato centrale, perfetto per attività sportive, con spazio sufficiente per un campo da tennis e una piscina olimpionica Orto, alberi da frutto e giardino di erbe aromatiche Impianto di irrigazione Posti auto per oltre 10 veicoli Vivere l’Esperienza Villa Roby è più di una casa: è uno stile di vita. Che si tratti di accogliere ospiti su una terrazza soleggiata, di assaporare mattine silenziose tra i pini o di tornare da una passeggiata sulla spiaggia vicina, ogni momento è arricchito dall’eleganza della dimora e dal suo legame armonioso con la natura. Situata in un quartiere rinomato per le sue ville storiche, i giardini rigogliosi, i residenti di prestigio e la vicinanza a Forte dei Marmi, questa proprietà è un autentico gioiello di valore duraturo. Con il suo parco unico, materiali senza tempo e spazi magistralmente progettati, Villa Roby merita appieno il titolo di: “La Villa più Bella di Ronchi-Poveromo.”

Condizioni economiche

Contratto: Vendita
Prezzo: 3'500'000€
Arredato: si

Informazioni principali

Tipologia: Villa
Città: Massa
Zona: Poveromo
Superficie: 757 m²
N° locali: 10+
N° bagni: 5
N° Camere: 5
Piano: piano terra
Box: si
Posto auto: 10
Giardino: privato
Esposizione: N/S/W/E

Efficenza energetica

Classe energetica: D
Ipe: 74,00 kwm2
Ristrutturato: si

Dati inserzione

ID Offrocasa.com: 10858890
Data inserimento: 30/08/2025
Rif. Agenzia: 1339966/1086/884
Rif. Agenzia 1339966/1086/884

CHIONI Agenzia Immobiliare

Viale Viale Mazzini,, 316 - Forte dei Marmi (Lucca)
0584752173
Richiedi Info dal form:
Accetto l'Informativa Privacy


CHIONI Agenzia Immobiliare

Viale Viale Mazzini,, 316 - Forte dei Marmi (Lucca)

Villa in Vendita a Massa, zona Poveromo, 3'500'000€, 757 m², arredato, con Box

Chiama
Contatta