Villetta a schiera in Vendita a Viareggio, 390'000€, 195 m²

Locali: 10+
Bagni: 3
Camere: 5
Piano: su più livelli
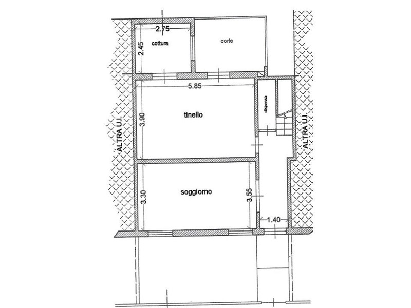
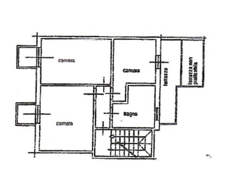
VIAREGGIO VILLETTA 9 POSTI LETTO VILLA KORA A VIAREGGIO, EX CAMPO AVIAZIONE: ABITARE IN STILE Quanto conta per te la Qualità della Vita? Appena si entra in casa, la sensazione è di accoglienza e di giusti spazi per famiglie numerose, pensato con gusto e armonia. Questa villetta a schiera, disposta su tre livelli, è situata a soli 150 metri dalla Pineta di Levante, nel cuore dell’Ex Campo d’Aviazione, PUNTI FORZA: La resede sul fronte strada, versatile, si presta a cene conviviali oppure uno spazio esclusivo per motorini e biciclette, senza dover attraversare la casa per porle nella corte interna. La posizione offre un accesso immediato ad un'oasi verde per passeggiate e relax. Il mare è raggiungibile comodamente in 10 minuti di bicicletta. La zona è tranquilla, lontana dal traffico cittadino, ma con servizi e negozi raggiungibili a piedi, rendendola perfetta per famiglie, coppie e chi lavora da casa. UN DESIGN UNICO E SPAZI FUNZIONALI: La casa si distingue per il suo stile etnico con elementi moderni, creando un'atmosfera piacevole e accogliente in ogni ambiente. I suoi spazi interni ed esterni sono stati pensati per offrire la massima comodità, rendendola una soluzione ideale per evadere dalle città rumorose o come prima casa per chi cerca ambienti comodi e funzionali per la propria famiglia. COMPOSIZIONE: • Zona giorno con salone doppio e cucina già aperta sul tinello, ripostiglio (ad uso servizio) • Giardino sul fronte, migliorabile con una siepe e resede sul retro con accesso dalla cucina. • Primo piano con tre camere (matrimoniale, media e cameretta), bagno, due balconcini e terrazza vivibile. • Secondo piano mansardato con altezze generose, soggiorno a uso camera, altra matrimoniale e bagno. • Totale: 9 posti letto DETTAGLI TECNICI: Termo singolo metano con radiatori, Aria condizionata Classe energetica F – IPE 175 Cat. A/3, 11 vani Sup. cat. 202mq escluse aree scoperte 195mq Rendita cat. 1.644,66 Prenota subito la tua visita ! * Nel rispetto della privacy dei venditori l'indirizzo dell'immobile e la posizione sulla mappa sono volutamente indicativi, pur trovandosi nelle immediate vicinanze. Le informazioni presenti sull’annuncio sono fornite a titolo indicativo e non rappresentano alcun impegno contrattuale. Ha interesse a valutare altre proprietà? Ha un immobile di pregio da proporci? Ci contatti per un appuntamento ai recapiti che trova sul nostro sito AGENZIA DON BOSCO CASA . IT

Condizioni economiche

Contratto: Vendita
Prezzo: 390'000€

Informazioni principali

Tipologia: Villetta a schiera
Città: Viareggio
Superficie: 195 m²
N° locali: 10+
N° bagni: 3
N° Camere: 5
Piano: su più livelli
Giardino: privato

Efficenza energetica

Classe energetica: F
Ipe: 175,00 kwm2
Anno di costruzione: 1967
Ristrutturato: si

Dati inserzione

ID Offrocasa.com: 10855319
Data inserimento: 26/08/2025
Rif. Agenzia: 1334299/1094/VILLA KORA
Rif. Agenzia 1334299/1094/VILLA KORA

AGENZIA DON BOSCO CASA SNC

Via Via G. Matteotti,, 4 - Viareggio (Lucca)
3703091785
Richiedi Info dal form:
Accetto l'Informativa Privacy


AGENZIA DON BOSCO CASA SNC

Via Via G. Matteotti,, 4 - Viareggio (Lucca)

Villetta a schiera in Vendita a Viareggio, 390'000€, 195 m²

Chiama
Contatta