Terreno edificabile in Vendita a Sant'Agata Bolognese, 450'000€, 650 m²

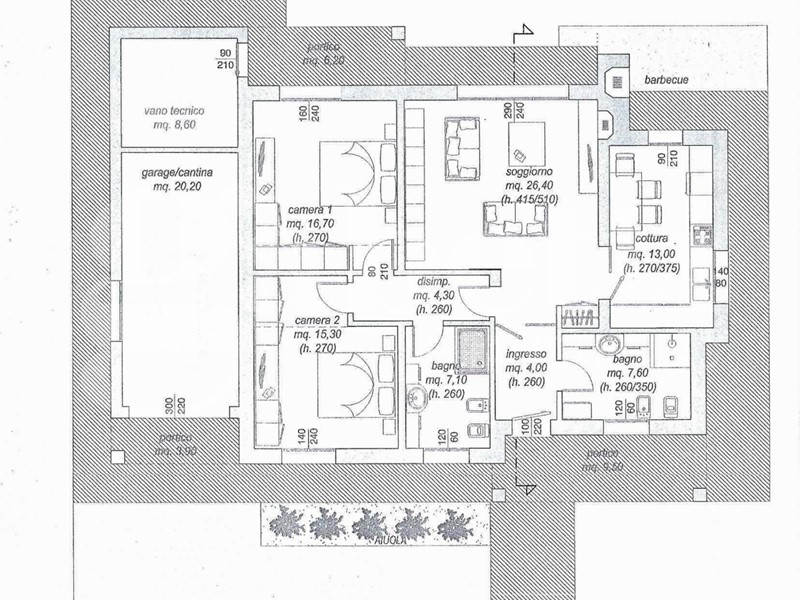
GABETTI San Giovanni in Persiceto propone gli ultimi 3 lotti disponibili nella nuova lottizzazione adiacente al centro di Sant'Agata Bolognese (BO), dove potrai realizzare la villa dei tuoi sogni. Ogni lotto è di circa 650 mq con possibilità di creare una villa fino a 170 mq commerciali. Le ville, in classe A4, sono composte da salone, cucina, tre camere, due bagni, garage e vano tecnico lavanderia, con possibilità di massima personalizzazione in base alle proprie esigenze. La planimetria è puramente illustrativa. Prezzi a partire da 450.000 euro. Per ulteriori informazioni rivolgersi in ufficio. Rif. L3.

Condizioni economiche

Contratto: Vendita
Prezzo: 450'000€

Informazioni principali

Tipologia: Terreno edificabile
Città: Sant'Agata Bolognese
Superficie: 650 m²

Efficenza energetica

Classe energetica:
Anno di costruzione: 0

Dati inserzione

ID Offrocasa.com: 10855239
Data inserimento: 24/08/2025
Rif. Agenzia: L3VRG
Rif. Agenzia L3VRG

Gabetti

circonvallazione Liberazione 1 - San Giovanni in Persiceto (Bologna)
051.6879053
Richiedi Info dal form:
Accetto l'Informativa Privacy


Gabetti

circonvallazione Liberazione 1 - San Giovanni in Persiceto (Bologna)

Terreno edificabile in Vendita a Sant'Agata Bolognese, 450'000€, 650 m²

Chiama
Contatta