Villa bifamiliare in Vendita a Tornimparte, 65'000€, 220 m²
        
    
        
    
        
    
    
        In vendita a Tornimparte: due porzioni di villa bifamiliare in fase di costruzione! 
Se sogni di personalizzare la tua casa in una zona tranquilla e soleggiata, questa è l'occasione perfetta!
Due porzioni di villa bifamiliare ancora da completare, con giardino da realizzare per goderti gli spazi all'aperto. 
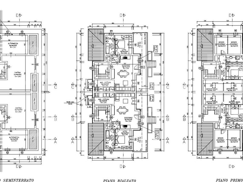
Piano semi interrato con cantina e garage, ideali per spazio e praticità. 
Piano rialzato con soggiorno e angolo cottura, una camera e un bagno, perfetti per la vita di tutti i giorni. 
Piano primo con tre camere da letto, un bagno e due ripostigli, per una distribuzione funzionale e spaziosa .
Zona assolata e tranquilla, ideale per vivere in relax e in contatto con la natura. Questa è un'ottima opportunità per chi desidera costruire la propria casa personalizzata in un contesto sereno! Per ulteriori dettagli o per organizzare una visita, contattaci subito!
Il prezzo indicato si riferisce ad una unità.
	
    
    
    
        
        
            Condizioni economiche
            
                Contratto: Vendita
            
            
                Prezzo: 65'000€
            
            
         
        
            Informazioni principali
            
                Tipologia: Villa bifamiliare
            
            
                Città: Tornimparte
            
            
                
                    Superficie: 220 m²
                
            
                
                    N° locali: 5
                
            
                
                    N° bagni: 2
                
            
                
                    Piano: Su più livelli
                
            
         
        
            Efficenza energetica
            
                Classe energetica: 
            
            
                
                    Anno di costruzione: 0
                
            
		 
        
            
                Dati inserzione
                
                    ID Offrocasa.com: 10853838
                
                
                
                    Data inserimento: 19/08/2025
                
                
                    
                        Rif. Agenzia: am10VRG
                    
                
             
        
	 
    
    
        
Villa bifamiliare in Vendita a Tornimparte, 65'000€, 220 m²