Appartamento in Vendita a Montignoso, zona Cervaiolo, 245'000€, 100 m², con Box

Locali: 5
Bagni: 1
Camere: 2
Piano: 3°
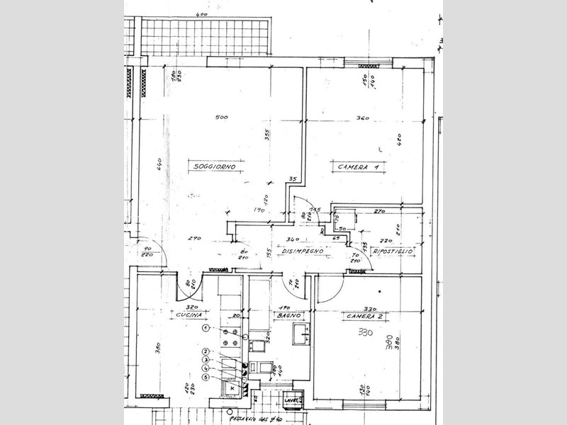
Al terzo ed ultimo piano di un condominio, a Montignoso in località Capanne, proponiamo in vendita un ampio e luminoso appartamento di 100 mq, ideale per chi cerca spazi comodi e una posizione strategica. Composizione interna: · Ingresso · Ampio soggiorno con accesso al balcone · Cucina abitabile con secondo balcone · 2 camere matrimoniali · Disimpegno · Ripostiglio · 1 bagno finestrato con vasca Caratteristiche aggiuntive: · Due balconi, perfetti per godere di momenti all’aperto · Garage privato al piano terra · Ultimo piano per maggiore privacy e silenzio L’immobile è situato in località Capanne, zona ben servita e a pochi minuti dai principali servizi, dal mare e dalle vie di collegamento. Richiesta: 245.000 € Per maggiori informazioni o per fissare una visita contattaci subito.

Condizioni economiche

Contratto: Vendita
Prezzo: 245'000€

Informazioni principali

Tipologia: Appartamento
Città: Montignoso
Zona: Cervaiolo
Superficie: 100 m²
N° locali: 5
N° bagni: 1
N° Camere: 2
Piano:
Box: si
Esposizione: Est/Ovest

Efficenza energetica

Classe energetica: G
Ipe: 325,00 kwm2
Ristrutturato: si

Dati inserzione

ID Offrocasa.com: 10853082
Data inserimento: 14/08/2025
Rif. Agenzia: 1338548/1086/881
Rif. Agenzia 1338548/1086/881

CHIONI Agenzia Immobiliare

Viale Viale Mazzini,, 316 - Forte dei Marmi (Lucca)
0584752173
Richiedi Info dal form:
Accetto l'Informativa Privacy


Condividi

CHIONI Agenzia Immobiliare

Viale Viale Mazzini,, 316 - Forte dei Marmi (Lucca)

Appartamento in Vendita a Montignoso, zona Cervaiolo, 245'000€, 100 m², con Box

Chiama
Contatta