Villa in Vendita a Pontedera, 450'000€, 125 m²

Locali: 5
Bagni: 3
Camere: 3
Piano: Su due livelli
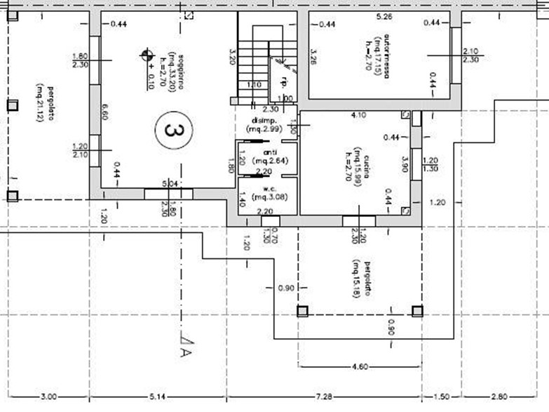
NUOVE VILLETTE IN COSTRUZIONE - CONSEGNA GIUGNO 2026 Disponibili tre splendide villette in fase di costruzione, con consegna prevista per Giugno 2026. Le proprietà sono dotate di moderne tecnologie e ampi spazi esterni. Villette 1 e 2 (Speculari) Queste due villette, di 125 mq ciascuna, sono disposte su due piani e offrono il seguente layout: - Piano terra: un accogliente soggiorno, una cucina abitabile, un ripostiglio, un anti-servizio con bagno e un vano tecnico. - Primo piano: una camera matrimoniale con bagno privato, due camerette, un disimpegno e un ulteriore bagno. Ogni unità dispone di un giardino esterno di circa 200 mq con pergolato, entrata indipendente e la possibilità di creare un posto auto. Il sistema di riscaldamento a pavimento, alimentato da pannelli solari con un gruppo elettrico di ultima generazione, assicura efficienza energetica e comfort. Prezzo richiesto: €450.000 (trattabile) per ciascuna villetta. Villetta 3 Situata in posizione più riservata, questa villetta di 132 mq si sviluppa su due piani: - Piano terra: un ampio soggiorno, una cucina abitabile, un disimpegno, un anti-servizio con bagno e un ripostiglio. - Primo piano: due camere matrimoniali (una con guardaroba), una cameretta, un disimpegno e un bagno. Il giardino esterno di circa 350 mq è più grande rispetto alle altre due villette e include un pergolato. Anche qui, si trova un'entrata indipendente e la possibilità di un posto auto. Il riscaldamento a pavimento è garantito da pannelli solari e un gruppo elettrico di ultima generazione. Prezzo richiesto: €570.000 (trattabile). per info contattare l'agenzia Dimora Velox con cod. DV2025137

Condizioni economiche

Contratto: Vendita
Prezzo: 450'000€

Informazioni principali

Tipologia: Villa
Città: Pontedera
Superficie: 125 m²
N° locali: 5
N° bagni: 3
N° Camere: 3
Piano: Su due livelli
Giardino: Privato

Efficenza energetica

Classe energetica: A1
Anno di costruzione: 2025
Riscaldamento: Autonomo

Dati inserzione

ID Offrocasa.com: 10851848
Data inserimento: 09/08/2025
Rif. Agenzia: DV2025137
Rif. Agenzia DV2025137

Dimora Velox 1967 servizi

Via Toscoromagnola 137 - Pontedera (Pisa)
0587091000
Richiedi Info dal form:
Accetto l'Informativa Privacy


Dimora Velox 1967 servizi

Via Toscoromagnola 137 - Pontedera (Pisa)

Villa in Vendita a Pontedera, 450'000€, 125 m²

Chiama
Contatta