Casa Indipendente in Vendita a Jesi, 230'000€, 120 m²

Locali: 5
Bagni: 2
Camere: 6
Piano: Terra
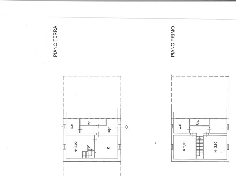
JESI ZONA COLLINARE - SOLUZIONE SINGOLA suddivisa in due cielo terra. Ogni appartamento ha una metratura di circa 120 mq. con relativo terreno agricolo. E in aggiunta annesso di circa 47 mq, garage e corte. Ogni appartamento è così meglio descritto: al piano terra ingresso, ripostiglio, cucina, sala, bagno. Al piano primo, collegato tramite una comoda scala interna, troviamo tre camere da letto, bagno e ripostiglio. Ottima posizione a 5 minuti da Jesi Centro. Possibilità di acquistare anche separatamente, informazioni e dettagli in Ufficio codice immobile 11948 e 11949. Classe energetica in richiesta. Per maggiori informazioni o per visionare l'immobile contatta lo staff di Grimaldi IMMOBILIARE o vieni a trovarci a Jesi in Piazza Caduti Sul Lavoro 3. Telefono fisso 0731207462. Vi invitiamo a visitare il nostro sito www.ouverturegroup.it dove potete trovare tantissime soluzioni.

Condizioni economiche

Contratto: Vendita
Prezzo: 230'000€
Libero: Si

Informazioni principali

Tipologia: Casa Indipendente
Città: Jesi
Superficie: 120 m²
N° locali: 5
N° bagni: 2
N° Camere: 6
Piano: Terra
Box: Singolo
Cucina: Abitabile
Giardino: Privato

Efficenza energetica

Classe energetica:
Anno di costruzione: 0
Riscaldamento: autonomo

Caratteristiche

Cantina: Si

Dati inserzione

ID Offrocasa.com: 10851556
Data inserimento: 08/08/2025
Rif. Agenzia: Cod. rif 11934VRG
Rif. Agenzia Cod. rif 11934VRG

Grimaldi Immobiliare

Piazza Caduti sul Lavoro 3 - Jesi (Ancona)
0731/207462
Richiedi Info dal form:
Accetto l'Informativa Privacy


Grimaldi Immobiliare

Piazza Caduti sul Lavoro 3 - Jesi (Ancona)

Casa Indipendente in Vendita a Jesi, 230'000€, 120 m²

Chiama
Contatta