Bilocale in Vendita a Sassari, 108'000€, 56 m², arredato
        
    
        
    
        
    
    
        Proponiamo in vendita un accogliente bilocale ristrutturato situato in una posizione strategica e servita e più precisamente in Corso Giovanni Maria Angioi, Sassari.
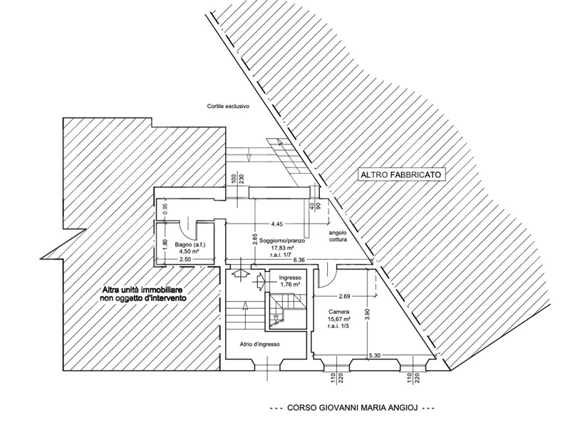
L'immobile si sviluppa su una superficie ben distribuita e comprende:
Salone luminoso con angolo cottura, ideale per accogliere amici o per godersi momenti di relax;
Camera matrimoniale confortevole, dotata di spazi funzionali e tranquilla;
Bagno moderno, recentemente rinnovato con materiali di qualità;
Giardino privato, uno spazio esclusivo che garantisce privacy e permette di godere di momenti all'aria aperta.
L'appartamento si presenta in condizioni impeccabili, grazie alla recente ristrutturazione che ha valorizzato ogni ambiente.
 
Attualmente l'immobile è locato con contratto di durata 3 anni, offrendo una rendita stabile e sicura. Il conduttore è puntuale e regolare nei pagamenti, con un canone mensile di 550?.
Grazie alla sua posizione centrale, alle condizioni interne e alla rendita già garantita, questa proprietà rappresenta un'ottima soluzione per chi desidera un investimento solido nel mercato immobiliare sassarese.
	
    
    
    
        
        
            Condizioni economiche
            
                Contratto: Vendita
            
            
                Prezzo: 108'000€
            
            
                
                    Arredato: Si
                
            
         
        
            Informazioni principali
            
                Tipologia: Bilocale
            
            
                Città: Sassari
            
            
                
                    Superficie: 56 m²
                
            
                
                    N° locali: 2
                
            
                
                    N° bagni: 1
                
            
                
                    N° Camere: 1
                
            
                
                    Piano: Rialzato
                
            
                
                    Cucina: Abitabile
                
            
                
                    Giardino: Privato
                
            
         
        
            Efficenza energetica
            
                Classe energetica: 
            
            
                
                    Anno di costruzione: 0
                
            
                
                    Riscaldamento: autonomo 
                
            
		 
        
            
                Dati inserzione
                
                    ID Offrocasa.com: 10851531
                
                
                
                    Data inserimento: 08/08/2025
                
                
                    
                        Rif. Agenzia: Cod. rif 3254712VRG
                    
                
             
        
	 
    
    
        
Bilocale in Vendita a Sassari, 108'000€, 56 m², arredato