Capannone in Vendita a Quartu Sant'Elena, 469'000€, 800 m²

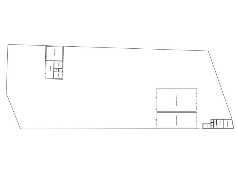
Cagliari Case propone in vendita un capannone fronte strada indipendente con affaccio diretto sulla SS 554 – Viale Europa, nel Comune di Quartu Sant’Elena. L’immobile sorge in posizione logistica privilegiata, nel tratto a più alto scorrimento tra Cagliari e l’hinterland, garantendo elevatissima visibilità, estrema facilità di accesso e connessioni immediate con le principali arterie stradali. In pochi minuti si raggiungono la SS 131 dir e la SS 130, che consentono collegamenti rapidi sia con il Porto di Cagliari sia con l’Aeroporto Internazionale di Cagliari-Elmas, rendendo la soluzione particolarmente adatta ad attività produttive, commerciali e logistiche che necessitano di mobilità e interscambio rapido con infrastrutture strategiche. La proprietà insiste su un lotto di circa 4.000 mq, interamente recintato e dotato di ampio ingresso carrabile, con grande area di manovra interna idonea anche ai mezzi pesanti. La superficie coperta complessiva è di circa 640 mq, così suddivisi: • 500 mq destinati ad area artigianale/produttiva, con altezze funzionali e accessi idonei ad attività industriali leggere o laboratori; • 140 mq tra uffici direzionali e zona espositiva/showroom, posizionati sul fronte strada per massimizzare la rappresentanza; • blocco servizi indipendente sul retro con mensa, spogliatoi e gruppi bagno, riservato al personale. Ulteriori punti di forza sono la versatilità degli spazi e la possibilità di frazionamento in due unità immobiliari distinte, grazie al doppio accesso dalla SS 554: una soluzione da circa 1.800 mq di lotto e una seconda da 2.200 mq, ciascuna con potenzialità di ingresso autonomo. Adatto a imprese artigianali, logistiche, produttive o commerciali, che ricercano un immobile funzionale, ben organizzato e soprattutto in posizione di assoluto privilegio per visibilità, accessibilità e collegamenti con tutta la Città Metropolitana di Cagliari.PO533

Condizioni economiche

Contratto: Vendita
Prezzo: 469'000€
Libero: Si

Informazioni principali

Tipologia: Capannone
Città: Quartu Sant'Elena
Superficie: 800 m²

Efficenza energetica

Classe energetica: F
Condizioni stabile: Buono

Dati inserzione

ID Offrocasa.com: 10851321
Data inserimento: 08/08/2025
Rif. Agenzia: PO533
Rif. Agenzia PO533

Cagliari-Case.it

Via Marconi 453 - Quartu Sant'Elena (Cagliari)
0704618442
Richiedi Info dal form:
Accetto l'Informativa Privacy


Cagliari-Case.it

Via Marconi 453 - Quartu Sant'Elena (Cagliari)

Capannone in Vendita a Quartu Sant'Elena, 469'000€, 800 m²

Chiama
Contatta