Villa bifamiliare in Vendita a Santa Maria a Monte, 269'000€, 109 m²
        
    
        
    
        
    
    
        Da quanto tempo stai cercando una casa nuova, ad un prezzo abbordabile, indipendente, con spazio dentro e fuori e in un posto tranquillo… e quante volte non ci sei riuscito?
Le case che hanno tutto questo sono rare.
Questa villetta ha tutto ciò che serve; è in una zona ben servita, moderna e confortevole, una casa per una famiglia adulta. E' nella parte collinare di Santa Maria a Monte, in una posizione aperta, solativa e ventilata per sfruttare appieno l'energia solare in inverno e godere della brezza marina nei pomeriggi estivi.
Fa parte di un intervento di recupero, nuova costruzione, che verrà ultimato a fine 2026 e sarà garantito con standard moderni, pronto per essere personalizzato in base alle tue necessità e consegnato nuovo di zecca, con tutte le certificazioni di qualità.
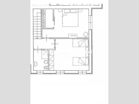
La disposizione è funzionale e accogliente funzionale e accogliente.
• Grande Soggiorno e cucina open space: un ambiente ampio e luminoso, un comodo angolo relax e conversazione ed una bella zona pranzo per la vita di tutti i giorni e per ospitare gli amici.
• Tre camere perché ognuno abbia i propri spazi e il proprio angolo di tranquillità.
• Due bagni moderni e funzionali, per il massimo comfort quotidiano.
• Pergolato all’ingresso, il tuo salotto all’aperto per rilassarti, leggere o cenare al tramonto.
In meno di dodici mesi puoi avere il luogo dove finalmente goderti i risultati del tuo lavoro, in uno spazio tagliato a misura per te.
E' la casa di livello, nuova, confortevole, antisismica e a impatto zero: con tutta l'impiantistica di ultima generazione è priva del gas e necessita di pochissima energia elettrica. Pensa alla soddisfazione di vedere la bolletta della luce e trovarci soltanto i costi fissi. Questa villetta è una tipologia di casa tra le più ricercate negli ultimi tempi, un'occasione per dimensioni e collocazione. Chiamaci subito per saperne di più.
	
    
    
    
        
        
            Condizioni economiche
            
                Contratto: Vendita
            
            
                Prezzo: 269'000€
            
            
         
        
            Informazioni principali
            
                Tipologia: Villa bifamiliare
            
            
                Città: Santa Maria a Monte
            
            
                
                    Superficie: 109 m²
                
            
                
                    N° locali: 5
                
            
                
                    N° bagni: 2
                
            
                
                    N° Camere: 3
                
            
                
                    Piano: su più livelli
                
            
                
                    Posto auto: 2
                
            
                
                    Giardino: privato
                
            
         
        
            Efficenza energetica
            
                Classe energetica: In attesa di certificazione
            
            
                
                    Anno di costruzione: 2026
                
            
		 
        
            
                Dati inserzione
                
                    ID Offrocasa.com: 10850500
                
                
                
                    Data inserimento: 07/08/2025
                
                
                    
                        Rif. Agenzia: 1331267/274/BRST668
                    
                
             
        
	 
    
    
        
Villa bifamiliare in Vendita a Santa Maria a Monte, 269'000€, 109 m²