Villetta a schiera in Vendita a L'Aquila, 240'000€, 180 m²

Locali: 4
Bagni: 3
Camere: 3
Piano: Su più livelli
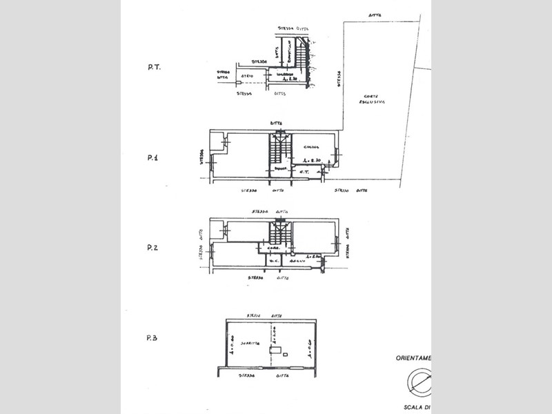
Se stai cercando una soluzione spaziosa e comoda, questa villa a schiera su tre livelli potrebbe essere quella giusta per te. Situata in una zona molto ben servita, ricca di mezzi pubblici e servizi, questa proprietà offre tutto ciò di cui hai bisogno. Al piano terra trovi un garage, una taverna con camino e un bagno di servizio, perfetti per momenti di relax o convivialità. Al primo piano si apre un ampio soggiorno, una cucina abitabile e un secondo bagno, ideali per la vita quotidiana. La zona notte comprende tre camere da letto e un ulteriore bagno, garantendo spazio e privacy per tutta la famiglia. A conclusione un locale sottotetto grezzo. All'esterno, un grande giardino con alberi da frutto e un ampio spazio pavimentato creano l'ambiente perfetto per pranzi all'aperto, giochi o semplicemente per godersi il verde. Se vuoi saperne di più o organizzare una visita, non esitare a contattarci!

Condizioni economiche

Contratto: Vendita
Prezzo: 240'000€

Informazioni principali

Tipologia: Villetta a schiera
Città: L'Aquila
Superficie: 180 m²
N° locali: 4
N° bagni: 3
N° Camere: 3
Piano: Su più livelli
Box: Singolo
Cucina: Abitabile
Giardino: Privato

Efficenza energetica

Classe energetica:
Anno di costruzione: 1989
Riscaldamento: autonomo

Dati inserzione

ID Offrocasa.com: 10848620
Data inserimento: 02/08/2025
Rif. Agenzia: am11VRG
Rif. Agenzia am11VRG

Gabetti

Via Giuseppe Verdi 10 - L'Aquila
0862414223
Richiedi Info dal form:
Accetto l'Informativa Privacy


Gabetti

Via Giuseppe Verdi 10 - L'Aquila

Villetta a schiera in Vendita a L'Aquila, 240'000€, 180 m²

Chiama
Contatta