Capannone in Vendita a Vimercate, 1'300'000€, 724 m²
        
    
        
    
        
    
    
        CV/330 L'Abbruzzi Gruppo Immobiliare propone in Vimercate, in zona commerciale industriale strategica in quanto comoda con gli accessi autostradali e della tangenziale est, capannone con doppia entrata indipendente disposto su due livelli:
al piano terra di mq.325 si trova il laboratorio con altezza di mt. 6.00;
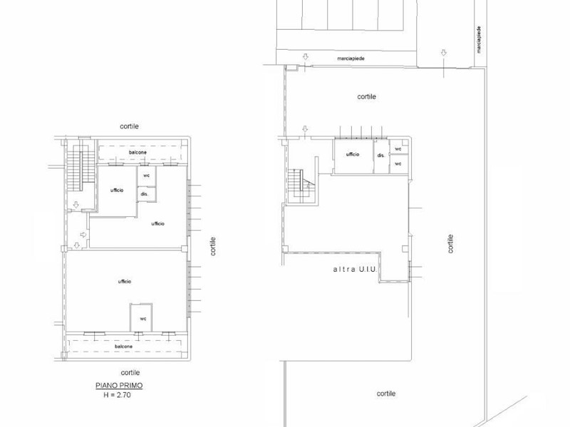
al primo piano di mq.325 con altezza di mt.2,70 sono collocati gli uffici, luminosi e ben distribuiti, dotati di terrazzi
A circondare la proprietà c'è un ampio cortile privato di circa 738 mq.
Una parte del capannone, più precisamente 220mq. di laboratorio e 155 mq di uffici al piano superiore è attualmente locata con contratto di locazione in essere, con scadenza dei secondi sei anni prevista per il 2030 e un canone annuo di Euro 100.000,00, offrendo un'interessante rendita garantita.
Completano la proprietà due lotti di terreno adiacenti per un totale di mq.1.120, in parte edificabili.
Al prezzo di Euro 1.300,000,00
Soluzione ideale sia per investimento a reddito che per utilizzo diretto, in una posizione logisticamente vantaggiosa e in forte espansione.
L'ABBRUZZI GRUPPO IMMOBILIARE di
Alessandro L'Abbruzzi
Via Fiorani, 119 Sesto S. Giovanni (MI)
tel. 02.26265020 fax 02/24308819
info@labbruzzi.it www.labbruzzi.it
GESTIAMO LA VENDITA E LA LOCAZIONE DEI VOSTRI IMMOBILI COMMERCIALI, RESIDENZIALI E INDUSTRIALI!
	
    
    
    
        
        
            Condizioni economiche
            
                Contratto: Vendita
            
            
                Prezzo: 1'300'000€
            
            
                
                    Libero: Si
                
            
         
        
            Informazioni principali
            
                Tipologia: Capannone
            
            
                Città: Vimercate
            
            
                
                    Superficie: 724 m²
                
            
                
                    Piano: Su più livelli
                
            
         
        
            Efficenza energetica
            
                Classe energetica: G
            
            
                
                    Ipe: 175.00 
                
            
                
                    Climatizzatore: Si
                
            
                
                    Anno di costruzione: 2011
                
            
                
                    Riscaldamento: autonomo 
                
            
		 
        
            
                Dati inserzione
                
                    ID Offrocasa.com: 10848560
                
                
                
                    Data inserimento: 02/08/2025
                
                
                    
                        Rif. Agenzia: CV/330
                    
                
             
        
	 
    
    
        
Capannone in Vendita a Vimercate, 1'300'000€, 724 m²