Casa Indipendente in Vendita a Lamporecchio, 130'000€, 195 m²

Locali: 8
Bagni: 2
Camere: 3
Piano: piano terra
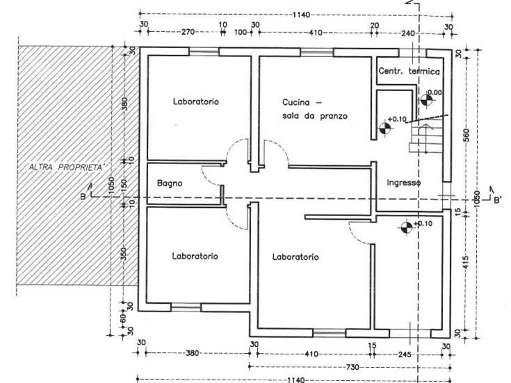
Periferia di Lamporecchio ma vicino a tutti i servizi e in zona rialzata, vendesi terratetto libero 3 lati su due livelli per circa 195mq. Composto da: piano terra: ingresso, cucina, sala da pranzo, soggiorno e locale laboratorio oltre bagno. piano primo: disimpegno, due camere matrimoniali, cameretta e bagno. Completano la vendita resede circostante di circa 200mq e terrena separato dalla strada vicinale di circa 8325mq. L'immobile risulta da rivedere/ristrutturare ma ha un grande potenziale considerando la metratura ed il prezzo. Disponibilità immediata, prezzo trattabile. Rif.D-965

Condizioni economiche

Contratto: Vendita
Prezzo: 130'000€
Prezzo trattabile: si

Informazioni principali

Tipologia: Casa Indipendente
Città: Lamporecchio
Superficie: 195 m²
N° locali: 8
N° bagni: 2
N° Camere: 3
Piano: piano terra
Posto auto: 2
Giardino: privato

Efficenza energetica

Classe energetica: G
Ipe: 200,00 kwm2
Ristrutturato: no

Dati inserzione

ID Offrocasa.com: 10848240
Data inserimento: 02/08/2025
Rif. Agenzia: 1337555/558/D-965
Rif. Agenzia 1337555/558/D-965

LA MERIDIANA Agenzia Immobiliare

Via Via V. Gramsci,, 2 - Lamporecchio (Pistoia)
057381781
Richiedi Info dal form:
Accetto l'Informativa Privacy


LA MERIDIANA Agenzia Immobiliare

Via Via V. Gramsci,, 2 - Lamporecchio (Pistoia)

Casa Indipendente in Vendita a Lamporecchio, 130'000€, 195 m²

Chiama
Contatta