Appartamento in Vendita a Bibiana, 24'000€, 130 m²
        
    
        
    
        
    
    
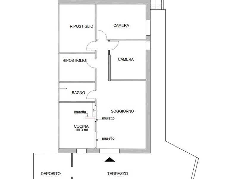
        Nel complesso immobiliare denominato "Fonte del Faggio": porzione di fabbricato ad uso civile abitazione posta al piano seminterrato e costituita dalla fusione di fatto di due unità immobiliari così composta: ingresso su soggiorno, cucina, due camere, due locali ripostiglio, un bagno privo di sanitari, terrazzo e magazzino abusivo esterno di mq. 12; annesso e pertinenziale terreno agricolo adibito ad orto ed in parte a cortile della superficie di mq. 560.
- Il Prezzo visualizzato è la Base d'Asta in quanto l’immobile è oggetto di esecuzione immobiliare venduto tramite Asta Giudiziaria.
- L'immobile aggiudicato, viene venduto libero e sgombro da persone cose ed ipoteche nello stato di fatto e di diritto in cui si trova.
- Non rappresentiamo il Tribunale, ma lavoriamo nell'esclusivo interesse del potenziale acquirente per garantire un acquisto sicuro.
- I consulenti di ASTE ITALIA ti assisteranno in tutte le attività dell'iter giudiziario dalla visita dell'immobile fino alla consegna chiavi.
- Contatta il nostro Servizio Clienti , i nostri operatori sono a disposizione per chiarire i molteplici dubbi per partecipare alle ASTE.
	
    
    
    
        
        
            Condizioni economiche
            
                Contratto: Vendita
            
            
                Prezzo: 24'000€
            
            
                
                    Arredato: No
                
            
         
        
            Informazioni principali
            
                Tipologia: Appartamento
            
            
                Città: Bibiana
            
            
                
                    Superficie: 130 m²
                
            
                
                    N° locali: 6
                
            
                
                    N° Camere: 2
                
            
                
                    Piano: s
                
            
                
                    Cucina: Abitabile
                
            
         
        
            Efficenza energetica
            
                Classe energetica: G
            
            
                
                    Anno di costruzione: 0
                
            
                
                    Condizioni stabile: Discreto
                
            
                
                    Riscaldamento: Autonomo
                
            
		 
        
            
                Dati inserzione
                
                    ID Offrocasa.com: 10847089
                
                
                
                    Data inserimento: 31/07/2025
                
                
                    
                        Rif. Agenzia: TO679/23LU-1811-25-0945
                    
                
             
        
	 
    
    
        
Appartamento in Vendita a Bibiana, 24'000€, 130 m²