Villetta a schiera in Vendita a Sinnai, 179'000€, 299 m²

Locali: 4
Bagni: 2
Camere: 3
Piano: Su più livelli
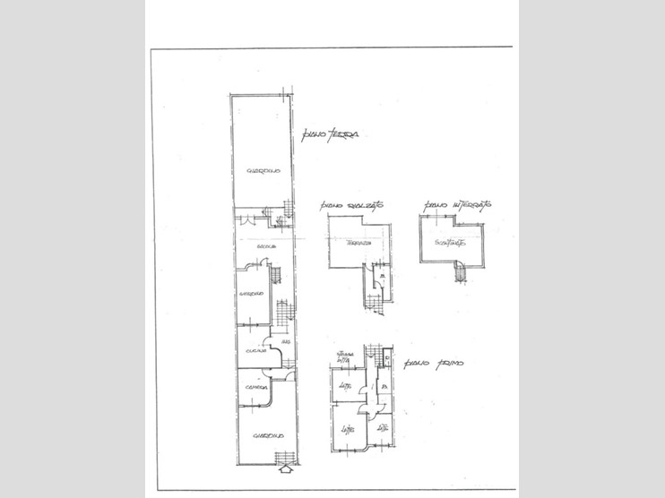
Ampia casa indipendente con cortile fronte/retro Sinnai - Ingresso paese Gabetti propone in esclusiva ampia casa indipendente disposta su tre livelli. L'immobile si differenzia per la sua particolare disposizione architettonica, articolato su tre livelli, si compone al piano terra da ampia e luminosa zona living che affaccia sul cortile interno e sul giardino retrostante, cucina abitabile e camera/studio; al piano primo troviamo la zona notte composta da tre ampie camere, 1 bagno con doccia ed un bagno completo di vasca e con un comodo ripostiglio, completa il piano una veranda panoramica; piano seminterrato comodo locale di sgombero di 30 mq con accesso anch'esso al giardino retrostante. L'immobile necessita di interventi di ammodernamento/restauro. Classe energetica: G Gabetti Sinnai Via Roma 1 Sinnai (CA) Tel. 070781207 Cell. 3463585216 gabsinnai@gmail.com

Condizioni economiche

Contratto: Vendita
Prezzo: 179'000€
Libero: Si

Informazioni principali

Tipologia: Villetta a schiera
Città: Sinnai
Superficie: 299 m²
N° locali: 4
N° bagni: 2
N° Camere: 3
Piano: Su più livelli
Cucina: Abitabile
Giardino: Privato

Efficenza energetica

Classe energetica: G
Ipe: 0.00 kwm2
Climatizzatore: Si
Anno di costruzione: 0
Riscaldamento: autonomo

Caratteristiche

Cantina: Si
Videocitofono: Si

Dati inserzione

ID Offrocasa.com: 10846966
Data inserimento: 31/07/2025
Rif. Agenzia: Cod. rif 3253395VRG
Rif. Agenzia Cod. rif 3253395VRG

Gabetti

Via Roma 1 - Sinnai (Cagliari)
070/781207
Richiedi Info dal form:
Accetto l'Informativa Privacy


Gabetti

Via Roma 1 - Sinnai (Cagliari)

Villetta a schiera in Vendita a Sinnai, 179'000€, 299 m²

Chiama
Contatta