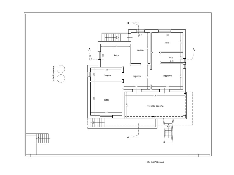
Villa in Vendita a Manduria, 250'000€, 216 m², arredato

Locali: 9
Bagni: 4
Piano: Su più livelli
Villa bifamiliare a circa 140 mt dal mare, vicino al centro di San Pietro in Bevagna, precisamente a circa 350 mt dalla Piazza Principale.

Condizioni economiche

Contratto: Vendita
Prezzo: 250'000€
Arredato: Si
Libero: Si

Informazioni principali

Tipologia: Villa
Città: Manduria
Superficie: 216 m²
N° locali: 9
N° bagni: 4
Piano: Su più livelli
Cucina: Abitabile

Efficenza energetica

Classe energetica: G
Ipe: 0.00 kwm2
Anno di costruzione: 0

Dati inserzione

ID Offrocasa.com: 10846960
Data inserimento: 31/07/2025
Rif. Agenzia: Cod. rif 3253206VRG
Rif. Agenzia Cod. rif 3253206VRG

Gabetti

via per Uggiano 71 - Manduria (Taranto)
099/9712996
Richiedi Info dal form:
Accetto l'Informativa Privacy


Gabetti

via per Uggiano 71 - Manduria (Taranto)

Villa in Vendita a Manduria, 250'000€, 216 m², arredato

Chiama
Contatta