Appartamento in Vendita a Castelnuovo Scrivia, 18'713€, 210 m², con Box

Locali: 10
Camere: 2
Piano: t
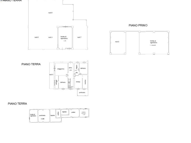
Abitazione di tipo economico, fabbricato ad uso residenziale con annesso box auto con accesso da cortile in comunione, posto al piano T in fabbricato di complessivi piani 2 con ingresso in comune composto da camere, cucina, bagno, corridoio, cabina armadio, portico, accessori e autorimessa - con terreno adiacente il fabbricato seminativo irriguo - Il Prezzo visualizzato è la Base d'Asta in quanto l’immobile è oggetto di esecuzione immobiliare venduto tramite Asta Giudiziaria. - L'immobile aggiudicato, viene venduto libero e sgombro da persone cose ed ipoteche nello stato di fatto e di diritto in cui si trova. - Non rappresentiamo il Tribunale, ma lavoriamo nell'esclusivo interesse del potenziale acquirente per garantire un acquisto sicuro. - I consulenti di ASTE ITALIA ti assisteranno in tutte le attività dell'iter giudiziario dalla visita dell'immobile fino alla consegna chiavi. - Contatta il nostro Servizio Clienti , i nostri operatori sono a disposizione per chiarire i molteplici dubbi per partecipare alle ASTE.

Condizioni economiche

Contratto: Vendita
Prezzo: 18'713€
Arredato: No

Informazioni principali

Tipologia: Appartamento
Città: Castelnuovo Scrivia
Superficie: 210 m²
N° locali: 10
N° Camere: 2
Piano: t
Box: Si
Cucina: Cucinotto

Efficenza energetica

Classe energetica: G
Anno di costruzione: 0
Condizioni stabile: Discreto
Riscaldamento: Autonomo

Dati inserzione

ID Offrocasa.com: 10846362
Data inserimento: 30/07/2025
Rif. Agenzia: AL230/22L2-0412-25-1000
Rif. Agenzia AL230/22L2-0412-25-1000

ASTE ITALIA

Via Serra 6 Int 7 - Genova (GE)
010.8935240
Richiedi Info dal form:
Accetto l'Informativa Privacy


ASTE ITALIA

Via Serra 6 Int 7 - Genova (GE)

Appartamento in Vendita a Castelnuovo Scrivia, 18'713€, 210 m², con Box

Chiama
Contatta