Quadrilocale in Vendita a Andora, 529'000€, 105 m²

Locali: 4
Bagni: 2
Camere: 3
Piano: Alto
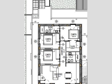
Hive Home propone in VENDITA, ESCLUSIVO ATTICO VISTA MARE: quadrilocale con doppi servizi di NUOVA costruzione ESENTE da IVA e da spese condominiali. La soluzione, rifinita con uno stile architettonico moderno ed elegante, si compone da: ingresso su ampio soggiorno con angolo cottura, comodo disimpegno che consente di accedere al bagno principale finestrato con doccia e a due camere da letto. Completa la proprietà la camera da letto principale con bagno di servizio finestrato. La proprietà, dotata di riscaldamento autonomo, presenta inoltre uno spazioso terrazzo che consente di vivere a pieno la bellissima esposizione al sole sud/ovest dell'alloggio e di godere della splendida vista mare, oltre ad un prezioso solarium privato di circa 75 mq e 2 posti auto. Siamo a circa 450 metri dalle spiagge di Andora, in zona comoda a tutti i servizi come alimentari, bar, fermate del bus e la prima farmacia dista circa 300 metri. Perfetta soluzione sia come prima che come seconda casa, con basse spese di gestione non essendo in condominio e con l'agevolazione dell'acquisto senza IVA. L'acquisto sarà regolamentato seguendo i SAL della costruzione, fornendo al possibile acquirente la possibilità di modificare la soluzione in corso d'opera. Che aspetti? Contattaci per maggiori informazioni.

Condizioni economiche

Contratto: Vendita
Prezzo: 529'000€
Arredato: Non arredato
Libero: Si

Informazioni principali

Tipologia: Quadrilocale
Città: Andora
Superficie: 105 m²
N° locali: 4
N° bagni: 2
N° Camere: 3
Piano: Alto
Esposizione: Sud-Ovest

Efficenza energetica

Classe energetica:
Anno di costruzione: 2025
Condizioni stabile: Molto buono
Riscaldamento: Autonomo

Dati inserzione

ID Offrocasa.com: 10845031
Data inserimento: 29/07/2025
Rif. Agenzia: 011
Rif. Agenzia 011
Piazza Santa Caterina 9 - Andora (Savona)
3501649805
Richiedi Info dal form:
Accetto l'Informativa Privacy


Condividi

Piazza Santa Caterina 9 - Andora (Savona)

Quadrilocale in Vendita a Andora, 529'000€, 105 m²

Chiama
Contatta