Quadrilocale in Vendita a San Miniato, zona San Miniato Basso, 300'000€, 90 m², arredato, con Box

Locali: 4
Bagni: 1
Camere: 2
Piano: su più livelli
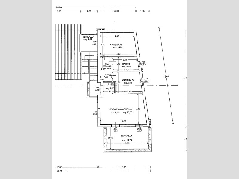
In vendita: un gradevole appartamento di 75 mq in una tranquilla zona residenziale, ideale per chi cerca comfort e vicinanza ai servizi. L'immobile, situato al primo piano di una quadrifamiliare di recente costruzione, è libero su tre lati e gode di ingresso indipendente e di un'ampia terrazza attrezzata con una tenda, perfetta per momenti di relax all'aria aperta. Si accede all'abitazione da scala esterna e terrazzo, attraverso una corte esclusiva che immette anche nel garage privato di oltre 15 mq. La proprietà include anche un piccolo giardino di circa 27 mq sul retro del garage. L'appartamento è composto da una spaziosa zona giorno con ingresso, soggiorno, cucina e sala da pranzo. Questo ambiente si affaccia sull'ampia terrazza, dando continuità all'aperto al living della casa. La zona notte comprende una camera matrimoniale con terrazzo, una cameretta e un bagno con doccia. Al piano terra, collegata al garage, si trova una pratica lavanderia. Costruito con attenzione all'efficienza energetica, l'appartamento è dotato di cappotto termico, riscaldamento a pavimento, aria condizionata e predisposizione per pannelli solari. Ulteriori comfort includono un sistema di aspirazione centralizzata, un addolcitore dell'acqua, un sistema d'allarme e infissi con zanzariere. La vendita include anche la cucina completa di elettrodomestici, penisola e il mobile del soggiorno, rendendo l'appartamento pronto per essere abitato fin da subito.

Condizioni economiche

Contratto: Vendita
Prezzo: 300'000€
Arredato: si

Informazioni principali

Tipologia: Quadrilocale
Città: San Miniato
Zona: San Miniato Basso
Superficie: 90 m²
N° locali: 4
N° bagni: 1
N° Camere: 2
Piano: su più livelli
Box: si
Giardino: privato

Efficenza energetica

Classe energetica: C
Ipe: 81,00 kwm2
Ristrutturato: si

Dati inserzione

ID Offrocasa.com: 10842628
Data inserimento: 25/07/2025
Rif. Agenzia: 1335575/195/2655
Rif. Agenzia 1335575/195/2655

CIULLI Agenzia Immobiliare

Via via Augusto Conti, 36 - San Miniato (Pisa)
0571418731
Richiedi Info dal form:
Accetto l'Informativa Privacy


Condividi

CIULLI Agenzia Immobiliare

Via via Augusto Conti, 36 - San Miniato (Pisa)

Quadrilocale in Vendita a San Miniato, zona San Miniato Basso, 300'000€, 90 m², arredato, con Box

Chiama
Contatta