Monolocale in Vendita a Taranto, 169'000€, 283 m²

Locali: 1
Bagni: 3
Camere: 2
Piano: 1°
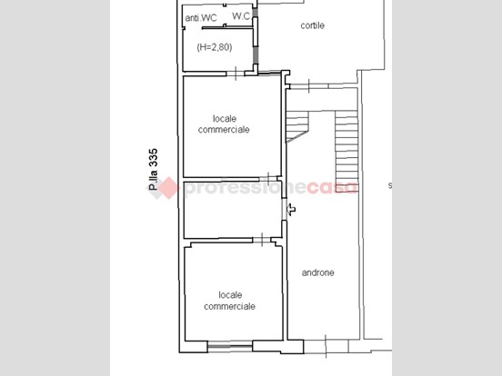
Soluzione semi-indipendente su più livelli in vendita a Taranto Proponiamo in vendita intera proprietà in stabile bi-familiare composta da locale commerciale appartamento e locale deposito per una superficie complessiva di circa centottantotto metri quadrati commerciali Il piano terra è occupato da un locale commerciale di circa sessantotto metri quadrati completamente ristrutturato ideale per uso studio o attività professionale con una vetrina fronte strada composto da tre ambienti oltre bagno e dotato di controsoffittatura con illuminazione a led integrata Adiacente al locale commerciale si trova un secondo ambiente catastalmente studio deposito con ingresso indipendente da cortile interno condominiale composto da tre ambienti oltre ripostiglio collegato tramite scala a un terrazzino di proprietà esclusiva dell'unità residenziale superiore Al primo piano si sviluppa un appartamento della superficie di circa novanta metri quadrati composto da ingresso soggiorno living camera da letto matrimoniale cucinotto bagno ripostiglio e veranda che collega la zona giorno a un terrazzo interno di proprietà esclusiva Completa la proprietà un comodo locale ad uso deposito di circa ventisette metri quadrati situato al piano ammezzato con annesso terrazzino pertinenziale L'edificio risale agli anni settanta e necessita di lavori di ristrutturazione per adeguamento agli standard abitativi moderni Finiture presenti pavimentazione in ceramica infissi esterni in legno e vetro citofono Soluzione ideale per professionisti famiglie numerose o come investimento grazie alla possibilità di valorizzare separatamente le singole unità

Condizioni economiche

Contratto: Vendita
Prezzo: 169'000€
Arredato: No

Informazioni principali

Tipologia: Monolocale
Città: Taranto
Superficie: 283 m²
N° locali: 1
N° bagni: 3
N° Camere: 2
Piano:
Cucina: Abitabile

Efficenza energetica

Classe energetica: 2015-G
Ipe: 38.20 kwm2
Anno di costruzione: 0

Dati inserzione

ID Offrocasa.com: 10842283
Data inserimento: 24/07/2025
Rif. Agenzia: Cod. rif 3223094VRG
Rif. Agenzia Cod. rif 3223094VRG

Professionecasa

Piazza Carbonelli 2a - Taranto
099.9530088
Richiedi Info dal form:
Accetto l'Informativa Privacy


Condividi

Professionecasa

Piazza Carbonelli 2a - Taranto

Monolocale in Vendita a Taranto, 169'000€, 283 m²

Chiama
Contatta