Immobile commerciale in Vendita a Camporosso, 92'625€, 179 m²

Locali: 3
Piano: t
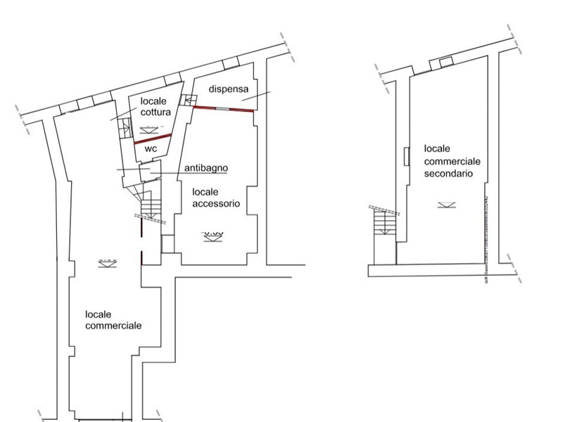
Negozio posto al piano terra con locale principale destinato a bar e locale accessorio secondario con piccolo deposito, servizio igienico con antibagno, locale destinato alla preparazione di cibi e al piano rialzato un secondo locale destinato al pubblico. - Il Prezzo visualizzato è la Base d'Asta in quanto l’immobile è oggetto di esecuzione immobiliare venduto tramite Asta Giudiziaria. - L'immobile aggiudicato, viene venduto libero e sgombro da persone cose ed ipoteche nello stato di fatto e di diritto in cui si trova. - Non rappresentiamo il Tribunale, ma lavoriamo nell'esclusivo interesse del potenziale acquirente per garantire un acquisto sicuro. - I consulenti di ASTE ITALIA ti assisteranno in tutte le attività dell'iter giudiziario dalla visita dell'immobile fino alla consegna chiavi. - Contatta il nostro Servizio Clienti , i nostri operatori sono a disposizione per chiarire i molteplici dubbi per partecipare alle ASTE.

Condizioni economiche

Contratto: Vendita
Prezzo: 92'625€
Arredato: No

Informazioni principali

Tipologia: Immobile commerciale
Città: Camporosso
Superficie: 179 m²
N° locali: 3
Piano: t
Cucina: Abitabile

Efficenza energetica

Classe energetica: G
Anno di costruzione: 0
Condizioni stabile: Discreto

Dati inserzione

ID Offrocasa.com: 10839467
Data inserimento: 19/07/2025
Rif. Agenzia: IM12/24LU-1411-25-1700
Rif. Agenzia IM12/24LU-1411-25-1700

ASTE ITALIA

Via Serra 6 Int 7 - Genova (GE)
010.8935240
Richiedi Info dal form:
Accetto l'Informativa Privacy


ASTE ITALIA

Via Serra 6 Int 7 - Genova (GE)

Immobile commerciale in Vendita a Camporosso, 92'625€, 179 m²

Chiama
Contatta