Appartamento in Vendita a Pescara, 195'000€, 110 m²

Locali: 5
Bagni: 1
Camere: 3
Piano: 2°
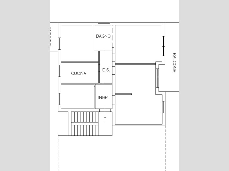
Rif-159t A Pescara, lungo la centralissima via Cesare Battisti, angolo via Muzi, l'agenzia Silvire vende un appartamento in uno stabile degli anni 70', al secondo piano senza ascensore, che sviluppa circa 110 mq e così composto: un ingresso, un ampio soggiorno con accesso ad un primo balcone spazioso di circa 25 mq; attraverso un disimpegno si accede ad una cucina abitabile, tre camere di cui due matrimoniali, un bagno e un ulteriore balcone. L'immobile si presenta nello stato originario e necessita di lavori di ristrutturazioni interne.

Condizioni economiche

Contratto: Vendita
Prezzo: 195'000€
Libero: Si

Informazioni principali

Tipologia: Appartamento
Città: Pescara
Superficie: 110 m²
N° locali: 5
N° bagni: 1
N° Camere: 3
Piano:
Cucina: Abitabile

Efficenza energetica

Classe energetica: 2015-G
Anno di costruzione: 1970
Riscaldamento: autonomo a radiatori

Dati inserzione

ID Offrocasa.com: 10839325
Data inserimento: 19/07/2025
Rif. Agenzia: RIF-159T
Rif. Agenzia RIF-159T

SANNA ERMINIA

VIA TICINO 13 - Silvi (Teramo)
3272392282
Richiedi Info dal form:
Accetto l'Informativa Privacy


SANNA ERMINIA

VIA TICINO 13 - Silvi (Teramo)

Appartamento in Vendita a Pescara, 195'000€, 110 m²

Chiama
Contatta