Trilocale in Vendita a Montevecchia, 316'200€, 117 m²

Locali: 3
Bagni: 2
Camere: 2
Piano: Terra
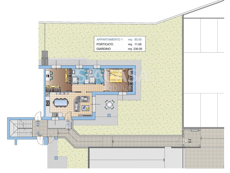
APPARTAMENTO PIANO TERRA 1 – RESIDENZA “SOLE E LUNA” Trilocale con giardino su tre lati – 85 mq interni + 230 mq di verde privato L'appartamento si sviluppa su una superficie interna di 85 mq, con una distribuzione funzionale degli spazi e divisioni interne completamente personalizzabili, per adattarsi alle esigenze di chi lo abiterà. La disposizione attuale prevede: · Una luminosissima zona giorno con cucina a vista; · Due camere da letto ben dimensionate; · Due bagni finestrati, eleganti e comodi. A rendere unico questo appartamento è lo splendido giardino privato di 230 mq, che circonda la casa su tre lati (est, sud e nord), offrendo scorci di verde, spazi per pranzare all’aperto, momenti di relax e perfetta esposizione alla luce naturale durante tutto l’arco della giornata. Completano la proprietà un portico coperto di 18 mq, ideale per pranzi estivi, zone lounge o come naturale estensione della zona living. L’attenzione progettuale si riflette non solo nelle dotazioni impiantistiche di ultima generazione (Classe energetica A4, pompa di calore autonoma, VMC puntuale, riscaldamento a pavimento, infissi a taglio termico e tapparelle motorizzate), ma anche nella possibilità di personalizzare ogni ambiente. Incluso nel prezzo, viene offerto gratuitamente il servizio dell’architetto dello studio progettista, che accompagnerà l’acquirente nella definizione delle divisioni interne e delle finiture, trasformando l’appartamento in una casa su misura. Contatta il nostro studio per fissare un appuntamento personalizzato: potrai visionare i progetti, approfondire ogni dettaglio impiantistico e conoscere direttamente i progettisti — nonché proprietari e realizzatori della tua futura casa. Il tuo nuovo spazio di vita, tra natura, indipendenza e qualità. Appartamento Piano Terra 1 – Residenza “Sole e Luna” – Montevecchia (LC) RESIDENZA “SOLE E LUNA” – MINI PALAZZINA DI APPARTAMENTI IN VILLA A MONTEVECCHIA (LC) Classe energetica A4 | Comfort, natura e indipendenza Nel cuore delle colline brianzole, nella posizione più strategica e riservata del comune di Montevecchia, nasce “Sole e Luna”, una nuova residenza di charme immersa nella quiete, tra i profumi e i colori del Parco del Curone. Un luogo dove la luce del giorno e la tranquillità della sera si incontrano in un equilibrio perfetto — proprio come il nome suggerisce — offrendo uno stile di vita autentico e rilassato, a contatto con la natura ma a pochi minuti da ogni servizio. La residenza è composta da una mini-palazzina di appartamenti in villa, con sole sei unità abitative pensate per chi cerca privacy, indipendenza e qualità costruttiva: • Tre appartamenti al piano terra, ciascuno con ingresso autonomo e giardino privato, ideali per vivere gli spazi esterni in totale libertà. • Tre appartamenti al primo piano, con tripla esposizione e ampie terrazze, per godere della luce naturale e della vista sulle colline circostanti. A completare la residenza, è prevista la possibilità di acquistare box autorimessa, singoli di ampia metratura oppure doppi, disponibili in diverse dimensioni. A firmare il progetto è lo stesso studio di progettazione promotore dell’iniziativa, da decenni specializzato non solo in progettazioni conto terzi, ma anche nella realizzazione diretta di mini-palazzine di alta qualità, costruite con la stessa cura che si avrebbe per la propria casa. Caratteristiche tecniche di eccellenza – Classe A4 garantita: • Impianto autonomo in pompa di calore, con riscaldamento a pavimento e predisposizione per il raffrescamento ad aria. • Ventilazione Meccanica Controllata (VMC) puntuale in ogni ambiente, per un’aria sempre pulita e il giusto controllo dell’umidità. • Infissi in PVC con taglio termico-acustico di fascia alta, montati su monoblocchi di primaria marca, con tapparelle motorizzate in alluminio coibentato. Ogni dettaglio, ogni finitura, ogni scelta impiantistica è pensata con...

Condizioni economiche

Contratto: Vendita
Prezzo: 316'200€

Informazioni principali

Tipologia: Trilocale
Città: Montevecchia
Superficie: 117 m²
N° locali: 3
N° bagni: 2
N° Camere: 2
Piano: Terra
Giardino: Privato
Esposizione: Sud-Est

Efficenza energetica

Classe energetica: A4
Anno di costruzione: 2025
Riscaldamento: Autonomo

Dati inserzione

ID Offrocasa.com: 10839195
Data inserimento: 19/07/2025
Rif. Agenzia: 3LOC.MONTEVECCHIA-IZ316V
Rif. Agenzia 3LOC.MONTEVECCHIA-IZ316V

Siacasa Immobiliare Srl

Via E. Berlinguer 44 - Cornate d'Adda (Monza-Brianza)
039.6840942
Richiedi Info dal form:
Accetto l'Informativa Privacy


Condividi

Siacasa Immobiliare Srl

Via E. Berlinguer 44 - Cornate d'Adda (Monza-Brianza)

Trilocale in Vendita a Montevecchia, 316'200€, 117 m²

Chiama
Contatta