Capannone in Vendita a San Miniato, zona Catena, 620'000€, 1170 m²

Locali: 2
Piano: piano terra
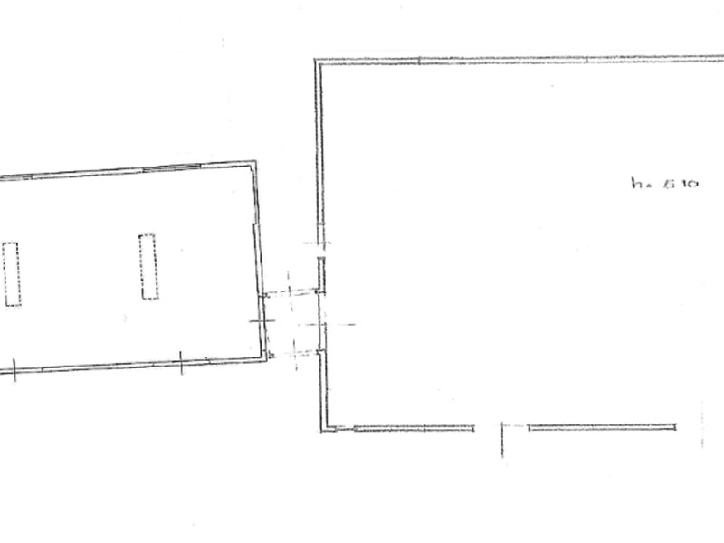
Complesso composto da due capannoni tra loro collegati, per una superficie di 1170 mq. circa. il primo è un unico ambiente rettangolare di circa 5 metri di altezza, della superficie di 725 mq. circa. Il secondo ha una altezza che varia dai 4 metri e mezzo sui lati ai 6 metri al centro della copertura (sono presenti dei tiranti) è più stretto e più lungo, per una superficie di 445 mq. circa. Ampio resede antistante e laterale, con accesso dalla strada pubblica. Vicinanza con l'ingresso della FI-PUI-LI.

Condizioni economiche

Contratto: Vendita
Prezzo: 620'000€

Informazioni principali

Tipologia: Capannone
Città: San Miniato
Zona: Catena
Superficie: 1170 m²
N° locali: 2
Piano: piano terra

Efficenza energetica

Classe energetica: G
Ipe: 190,30 kwm2
Ristrutturato: no

Dati inserzione

ID Offrocasa.com: 10838755
Data inserimento: 19/07/2025
Rif. Agenzia: 1334484/195/2646
Rif. Agenzia 1334484/195/2646

CIULLI Agenzia Immobiliare

Via via Augusto Conti, 36 - San Miniato (Pisa)
0571418731
Richiedi Info dal form:
Accetto l'Informativa Privacy


CIULLI Agenzia Immobiliare

Via via Augusto Conti, 36 - San Miniato (Pisa)

Capannone in Vendita a San Miniato, zona Catena, 620'000€, 1170 m²

Chiama
Contatta