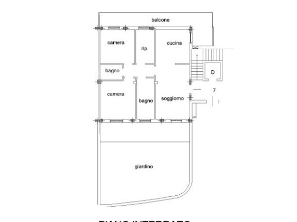
Appartamento in Vendita a Tortona, 67'500€, 150 m², con Box

Locali: 8
Camere: 2
Piano: t
Alloggio ad uso residenziale e due box auto facenti parte di complesso condominiale. - Il Prezzo visualizzato è la Base d'Asta in quanto l’immobile è oggetto di esecuzione immobiliare venduto tramite Asta Giudiziaria. - L'immobile aggiudicato, viene venduto libero e sgombro da persone cose ed ipoteche nello stato di fatto e di diritto in cui si trova. - Non rappresentiamo il Tribunale, ma lavoriamo nell'esclusivo interesse del potenziale acquirente per garantire un acquisto sicuro. - I consulenti di ASTE ITALIA ti assisteranno in tutte le attività dell'iter giudiziario dalla visita dell'immobile fino alla consegna chiavi. - Contatta il nostro Servizio Clienti , i nostri operatori sono a disposizione per chiarire i molteplici dubbi per partecipare alle ASTE.

Condizioni economiche

Contratto: Vendita
Prezzo: 67'500€
Arredato: No

Informazioni principali

Tipologia: Appartamento
Città: Tortona
Superficie: 150 m²
N° locali: 8
N° Camere: 2
Piano: t
N° balconi: 1
Box: Si
Cucina: Abitabile
Giardino: Si

Efficenza energetica

Classe energetica: G
Anno di costruzione: 0
Condizioni stabile: Buono
Riscaldamento: Centralizzato

Dati inserzione

ID Offrocasa.com: 10838379
Data inserimento: 18/07/2025
Rif. Agenzia: AL270/24L2-2511-25-1600
Rif. Agenzia AL270/24L2-2511-25-1600

ASTE ITALIA

Via Serra 6 Int 7 - Genova (GE)
010.8935240
Richiedi Info dal form:
Accetto l'Informativa Privacy


ASTE ITALIA

Via Serra 6 Int 7 - Genova (GE)

Appartamento in Vendita a Tortona, 67'500€, 150 m², con Box

Chiama
Contatta