Trilocale in Vendita a Livorno, 75'000€, 51 m²
        
    
        
    
        
    
    
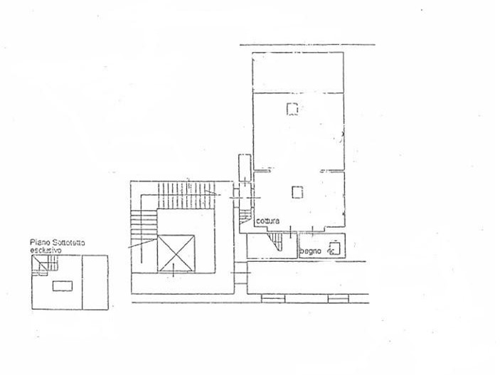
        Zona Centro-Rif.71:  Comoda mansarda posta al 4 piano con ascensore, ideale come investimento, composta da: cucina abitabile , sosggiorno , camera in soppalco , bagno e grande ripostiglio nel sottotetto. Buone condizioni interne, termoautonomo e climatizzato. 
La posizione dell'appartamento è strategica per essere raggiunta facilmente con mezzi pubblici, inoltre è ben servita dai negozi , a due passi dal Mercato centrale di Livorno e dalla Fortezza Nuova.  Classe energetica : G .  € 75.000
QUESTO E MOLTI ALTRI ANNUNCI SONO PRESENTI
SUL NOSTRO SITO www.centroservizimmobiliari.it
SULLA NOSTRA PAGINA FACEBOOK  https://m.facebook.com/www.centroservizimmobiliari.it
SULLA NOSTRA PAGINA INSTAGRAM  http://www.instagram.com/centroservizimmobiliari
SUL NOSTRO CANALE YOUTUBE  https://www.youtube.com/channel/UC4GNjvdCl8eXTYsVQ3LLlHw
	
    
    
    
        
        
            Condizioni economiche
            
                Contratto: Vendita
            
            
                Prezzo: 75'000€
            
            
                
                    Spese condominiali: compresa acqua e ascensore
                
            
         
        
            Informazioni principali
            
                Tipologia: Trilocale
            
            
                Città: Livorno
            
            
                
                    Superficie: 51 m²
                
            
                
                    N° locali: 3
                
            
                
                    N° bagni: 1
                
            
                
                    N° Camere: 1
                
            
         
        
            Efficenza energetica
            
                Classe energetica: G
            
            
                
                    Ipe: 384,20 kwm2
                
            
                
                    Ristrutturato: si
                
            
		 
        
                
                    Caratteristiche
                    
                        
                            Ascensore: si
                        
                    
                 
            
            
                Dati inserzione
                
                    ID Offrocasa.com: 10833643
                
                
                
                    Data inserimento: 12/07/2025
                
                
                    
                        Rif. Agenzia: 1333816/425/71
                    
                
             
        
	 
    
    
        
Trilocale in Vendita a Livorno, 75'000€, 51 m²